| ID # | 952787 |
| פרטי בנין | גודל מגרש 0.04 דונם 69 ימים (DOM) |
| מיסים (בשנה) | $288 |
![]() |
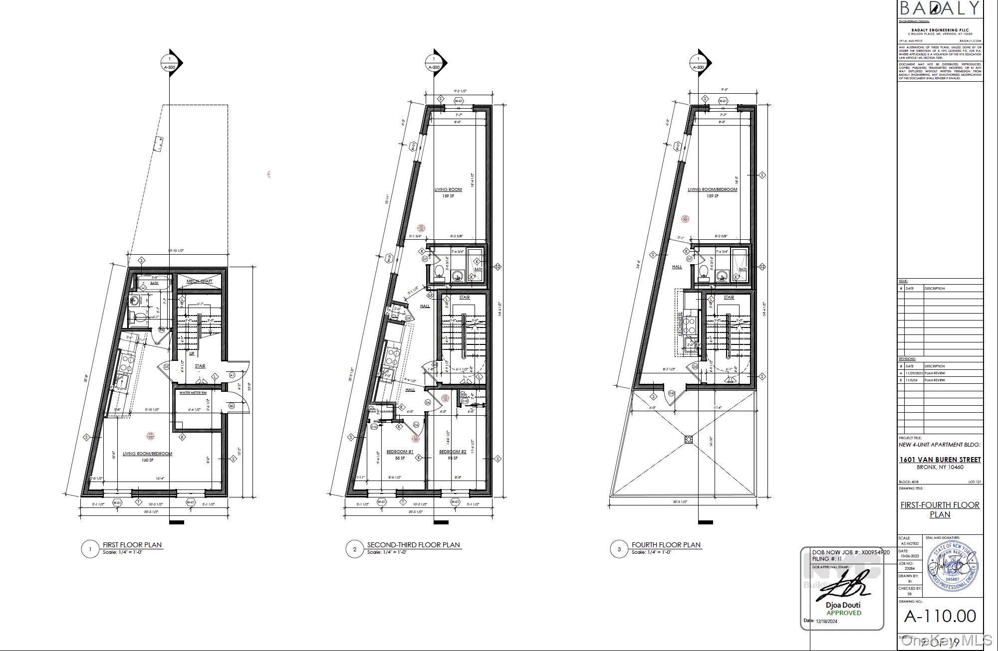
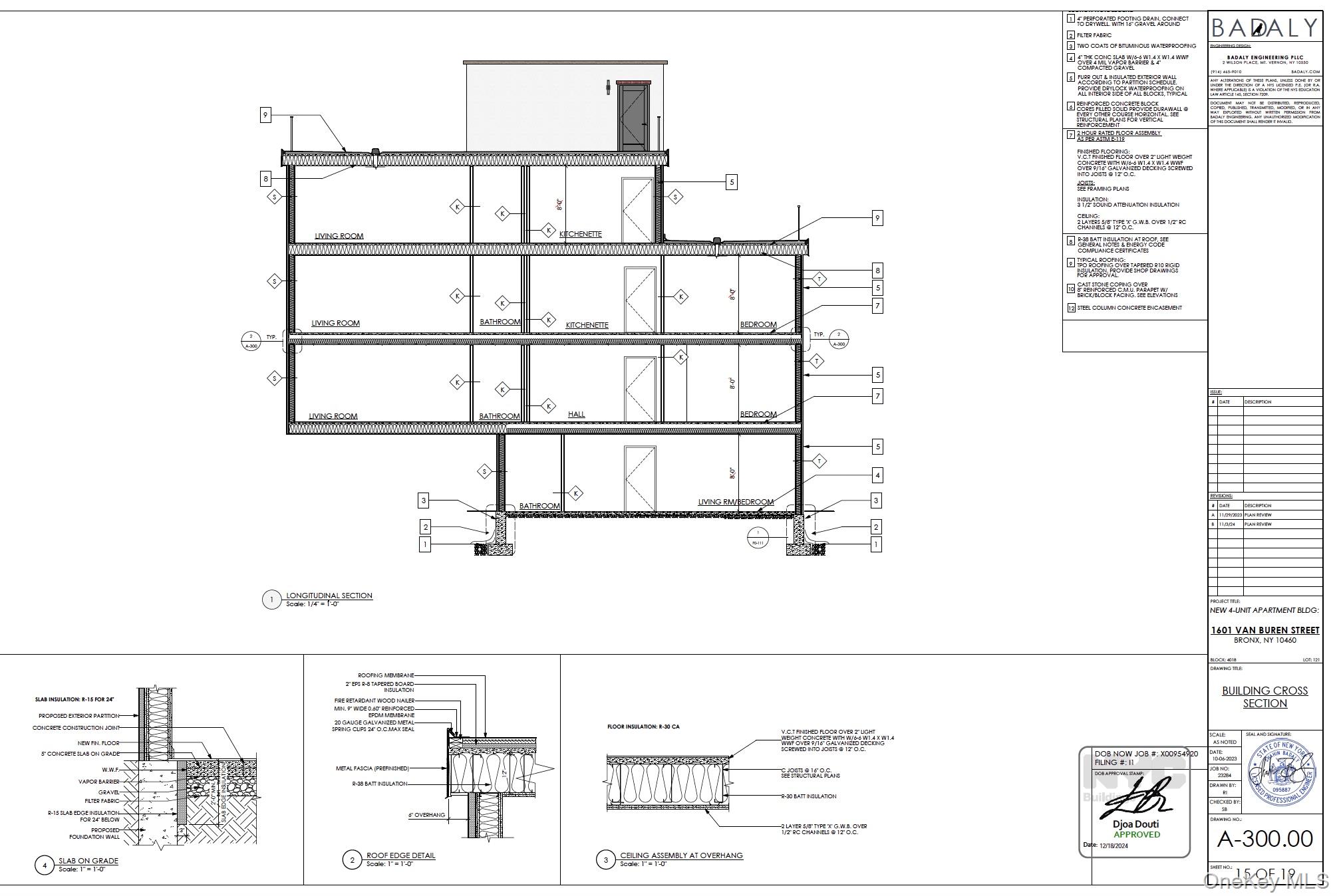
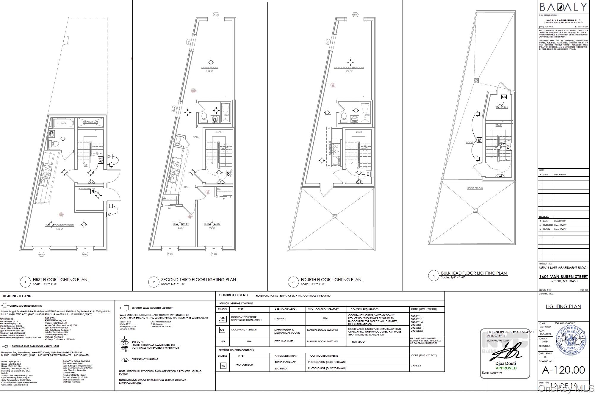
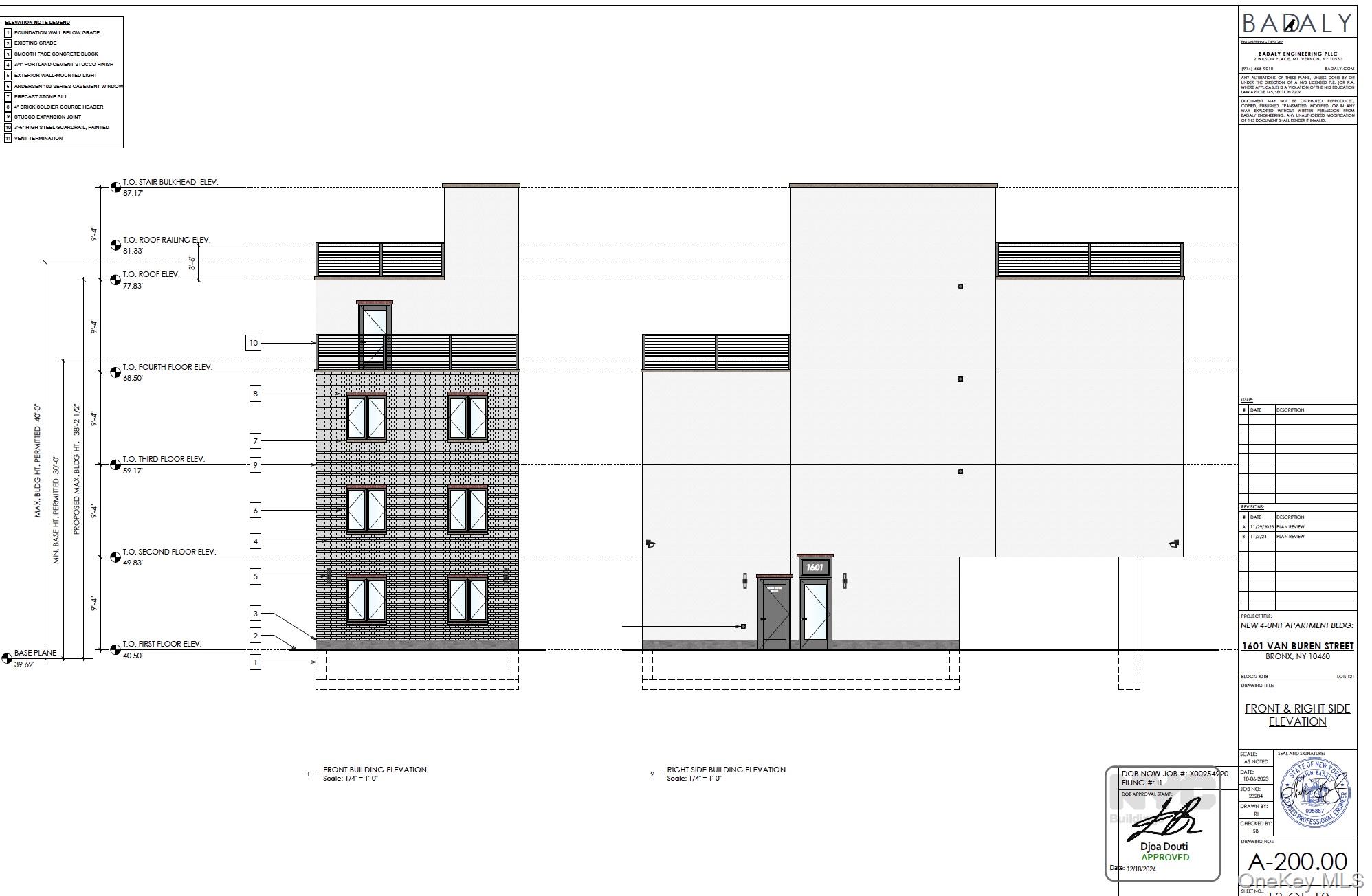
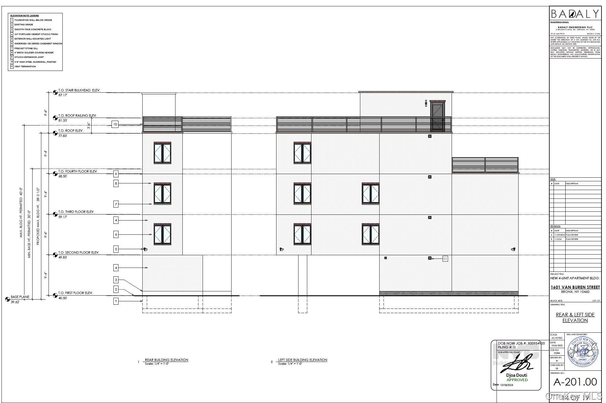
הזדמנות לפיתוח! לנכס יש תוכניות מאושרות לבניין עם 4 משפחות, עם פוטנציאל לשנות את התוכניות ולפתח עד 7 יחידות מגורים. ממוקם על שטח לא מסודר בשכונת ואן נסט. אידיאלי למפתחים או משקיעים המחפשים פוטנציאל להוספת ערך.
Development Opportunity! Property features approved plans for a 4-family building, with potential to amend plans and develop up to 7 residential units. Situated on an irregular lot in the Van Nest neighborhood. Ideal for developers or investors seeking value-add potential.
This information is not verified for authenticity or accuracy and is not guaranteed and may not reflect all real estate activity in the market. Listing courtesy of Apex Realty © 2026







