| ID # | RLS20066366 |
| פרטי בנין | 6 חדר שינה , 6 חדר אמבטיה , 1 חצי חדר אמבטיה , מכונת כביסה , מייבש כביסה , שטח פנימי 4424 רגל מרובע , 411 מ”ר , 3 יחידות בבניין , בבניין יש 4 קומות 62 ימים (DOM) |
| שנת בנייה | 1852 |
| מיסים (בשנה) | $35,724 |
| רכבת תחתית | 5 דקות לרכבת תחתית A, C, E |
| 6 דקות לרכבת תחתית L | |
| 7 דקות לרכבת תחתית 1 | |
| 9 דקות לרכבת תחתית 2, 3 | |
![]() |
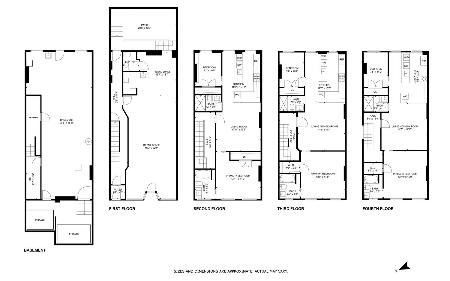
154 השדרה התשיעית צ'לסי בניין משולב מניב הכנסות
בניין משולב, שופץ לחלוטין בלב צ'לסי, מעוצב ככלי הכנסה בעל ביצועים גבוהים עבור משקיעים המחפשים יציבות, פוטנציאל עלייה ודור הצופן במיקום.
תצורת הכנסות-מניבות
1 יחידת מסחר בקומת הקרקע
3 יחידות דיור בשוק החופשי
כל קומה מגורים כוללת:
2 חדרי שינה / 2 חדרי אמבטיה
מכונת כביסה ומייבש בתוך הדירה
תכנונים מודרניים ויעילים שממקסמים את הפוטנציאל השכירות
מאפיינים נוספים להכנסות ולערך
חצר אחורית פרטית - פרימיום חיצוני נדיר
3 יחידות אחסון להשכרה - זרם הכנסה נוסף
אחסון אופניים במרתף - ממש מושך שוכרים
מצב מוכן, שופץ לחלוטין
הוצאות הון מינימליות בעתיד
מיקום מרכזי בצ'לסי במרחק צעדים משוק צ'לסי, ה-High Line, ורגעים מגוגל ו-Hudson Yards. מסדרון זה באופן קבוע מכתיב שכירות מגורים ומסחר פרימיום.
154 Ninth Avenue Chelsea Income-Producing Mixed-Use Building
A fully gut-renovated mixed-use building in the heart of Chelsea, engineered as a high-performance income tool for investors seeking stability, upside, and location-driven demand.
Income-Generating Configuration 1 Ground-Floor Commercial Unit 3 Free-Market Residential Units Each Residential Floor Features:
2 Bedrooms / 2 Bathrooms In-Unit Washer & Dryer Efficient, modern layouts maximizing rent potential Additional Revenue & Value Drivers Private Backyard - rare outdoor premium 3 Rentable Storage Units - incremental income stream Basement Bike Storage - strong tenant draw Turnkey, Gut-Renovated Condition Minimal future capital expenditures Prime Chelsea Location Steps from Chelsea Market, the High Line, and moments to Google and Hudson Yards. This corridor consistently commands premium residential and commercial rents.
This information is not verified for authenticity or accuracy and is not guaranteed and may not reflect all real estate activity in the market. © 2026 The Real Estate Board of New York, Inc., All rights reserved.







