| ID # | RLS20077576 |
| פרטי בנין | 2 חדר שינה , 2 חדר אמבטיה , 1 חצי חדר אמבטיה , מכונת כביסה , מייבש כביסה , שטח פנימי 1600 רגל מרובע , 149 מ”ר , בבניין יש 67 קומות 1 ימים (DOM) |
| שנת בנייה | 2003 |
| דמי תחזוקה | $2,284 |
| מיסים (בשנה) | $24,000 |
| רכבת תחתית | 4 דקות לרכבת תחתית 7, S |
| 5 דקות לרכבת תחתית B, D, F, M | |
| 6 דקות לרכבת תחתית 4, 5, 6, N, Q, R, W | |
| 8 דקות לרכבת תחתית 1, 2, 3 | |
![]() |
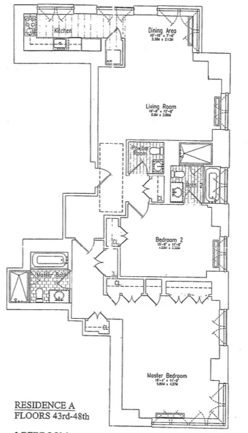
מענה נדיר של מידה, אור והבחנה באחד מהכתובות המוערצות ביותר של מנהטן. *** הערכת הון חודשית: 228.40 דולר *** ממוקם גבוה בקומה ה-47 של הבניין האיקוני 425 פifth Avenue, מגורים פינתיים יוצאי דופן אלה קוטפים נופים פנורמיים מדהימים לכיוונים צפון, דרום ומזרח דרך חלונות גדולים שמציפים כל חדר באור טבעי. שטחו כ-1,600 רגל רבוע, בית בשני יחידות זה, שמשולב בצורה מתחשבת, מציע תכנית דו-חדרים מאוזנת בעיצוב המיועד גם להנאה גדולה וגם לחיים יומיומיים מתוחכמים. מסדרון כניסה רחב מוביל לאזור מגורים וסעודה נרחב, שהוקף בנופים פתוחים של קו הרקיע, ומخلق אווירה אלגנטית ואווירית בכל רחבי הבית. המטבח השף עם החלון מעוצב בצורה בלתי נגמרת עם ארונות מעץ דובדבן עשירים, משטחי גרניט מבריקים, ומכשירי נירוסטה חדישים, כולל מדיח כלים מיילה, כיריים עם חמישה מבערים ומקרר סאב-זירו—מותאם באופן מושלם לארוחות אינטימיות או מפגשים מתוחכמים. הסוויטה הראשית המפנקת, המשתרעת על פני יותר מ-500 רגל רבוע, היא מקלט פרטי הכולל חמישה ארונות וחדר אמבטיה בסגנון ספא צמוד. עודן מצויד באמבט גדול, מקלחת נפרדת מגודרת בזכוכית, מתקני דורנבראכט, אריחים איטלקיים לבנים, וגימורים משיש, האמבטיה מציעה מקלט שקט מעל העיר. חדר השינה השני נהנה גם הוא מאמבטיה צמודה משלו, כולל אמבטיה גדולה הממוקמת כך שניתן לראות נופים מרשימים של קו הרקיע של ניו יורק—סביבה מפנקת להירגע בסוף היום. חדר שירותים מעוצב היטב מספק נוחות נוספת לאורחים. דגשים נוספים כוללים רצפות עץ בכל מקום ומכונת כביסה ומייבש של בוש המשלבים דיסקרטית בתוך הדירה. יחידה זו מייצגת אחת מהערכים המרתקים ביותר בתוך הבניין ובשוק המידטאון סאות' / פifth Avenue — הזדמנות יוצאת דופן לרכוש נופים מהשורה הראשונה, מיקום ומידה במחיר שאין לו תחליף. הבניין, שתוכנן על ידי האדריכל המפורסם מייקל גרייבס, 425 פifth Avenue הוא קונדומיניום יוקרתי בשירות מלא המציע שירותים ברמה גבוהה כולל שוער וקונסיירג' 24 שעות, מרכז כושר מתקדם, בריכה פנימית, חדר אדים וסאונה, טרסה חיצונית מעוצבת, לובי לתושבים, מרכז עסקים וחדר משחקים לילדים. ממוקם בלב מידטאון מנהטן, התושבים נהנים לגישה מיידית לבדלים ובתי הקפה בעולם של פifth Avenue, פארק בראיינט, שוק הול פודס, ספריית ניו יורק הציבורית, ותחנת גרנד סנטרל, כמו גם חיבור חלק לכל תחבורה מרכזית.
***A rare offering of scale, light, and distinction in one of Manhattan’s most coveted addresses. *** Monthly Capital Assessment: $228.40 Perched high on the 47th floor of the iconic 425 Fifth Avenue, this extraordinary corner residence captures breathtaking panoramic views to the north, south, and east through oversized windows that flood every room with natural light. Spanning approximately 1,600 square feet, this thoughtfully combined two-unit home offers a beautifully proportioned two-bedroom layout designed for both grand entertaining and refined daily living. A gracious entry foyer leads to an expansive living and dining area framed by open skyline vistas, creating an elegant and airy ambiance throughout. The windowed chef’s kitchen is impeccably appointed with rich cherry wood cabinetry, polished granite countertops, and premium stainless steel appliances, including a Miele dishwasher, five-burner cooktop, and Sub-Zero refrigerator—perfectly suited for intimate dinners or sophisticated gatherings. The sumptuous primary suite, spanning over 500 square feet, is a private retreat featuring five closets and a spa-inspired en-suite bath. Appointed with a deep soaking tub, separate glass-enclosed shower, Dornbracht fixtures, white Italian tile, and marble finishes, the bath offers a serene sanctuary above the city. The second bedroom also enjoys its own en-suite bath, complete with a deep soaking tub positioned to take in striking New York City skyline views—an indulgent setting for unwinding at day’s end. A well-appointed powder room provides additional comfort for guests. Additional highlights include hardwood floors throughout and a Bosch washer and dryer discreetly integrated within the residence. This unit represents one of the most compelling values within the building and the greater Midtown South / Fifth Avenue market—an exceptional opportunity to acquire premier views, location, and scale at an unmatched price point. Designed by renowned architect Michael Graves, 425 Fifth Avenue is a full-service luxury condominium offering white-glove amenities including a 24-hour doorman and concierge, state-of-the-art fitness center, indoor pool, steam room and sauna, landscaped outdoor terrace, residents’ lounge, business center, and children’s playroom. Situated in the heart of Midtown Manhattan, residents enjoy immediate access to Fifth Avenue’s world-class boutiques and dining, Bryant Park, Whole Foods Market, New York Public Library, and Grand Central Terminal, along with seamless connectivity to all major transportation.
This information is not verified for authenticity or accuracy and is not guaranteed and may not reflect all real estate activity in the market. © 2026 The Real Estate Board of New York, Inc., All rights reserved.







