| ID # | RLS20068052 |
| פרטי בנין | 3 חדר שינה , 2 חדר אמבטיה , 1 חצי חדר אמבטיה , מכונת מדיח כלים , מכונת כביסה , מייבש כביסה , 5 יחידות בבניין , בבניין יש 5 קומות 50 ימים (DOM) |
| שנת בנייה | 1900 |
| דמי תחזוקה | $4,665 |
| רכבת תחתית | 3 דקות לרכבת תחתית B, C |
| 6 דקות לרכבת תחתית 1 | |
![]() |
גן מקלט חד-פעמי בצד המערבי העליון.
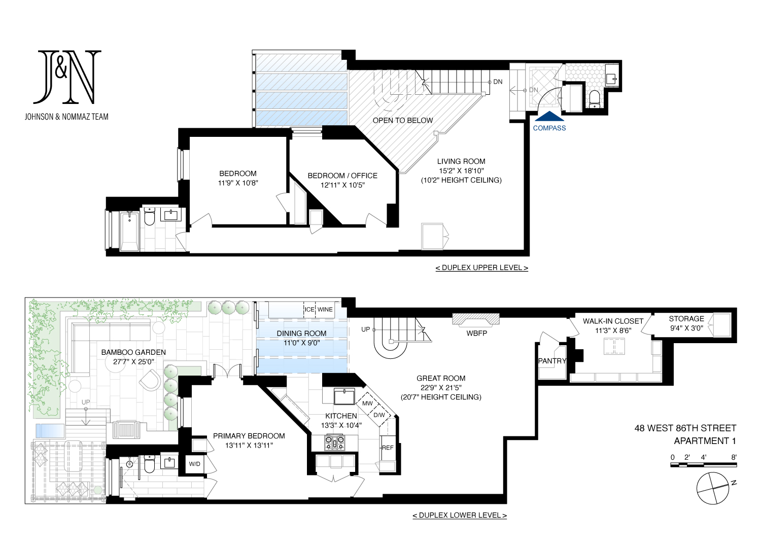
ברוך הבא הביתה ל-48 רחוב 86 מערב. דופלקס גינה מדהים של 3 חדרי שינה בצד המערבי העליון, במרחק בלוק מהפארק המרכזי, ובו האחוזה הפרטית המדהימה ביותר - כמעט 500 רגלים מרובעים של חיים חיצוניים הכוללים פגודה לארוחות, גריל חיצוני, בריכה עם מפל - כל זה מוקף בבמבוק ירוק ובוגר למען הפרטיות.
הדופלקס הזה בסגנון Townhouse מוכן לעבור אליו ומציע חווית NYC ייחודית להפליא - תקרות מרשימות של עד 20 רגל, שלושה חדרי שינה מרווחים, שניים וחצי חדרי רחצה, סולריום, אח הפועל בעץ, ופינת גינה פרטית יפהפיה. גריל גז טבעי מזמין אותך להתענג על אוכל באוויר הפתוח; הפגודה עם הגפן המזדקנת מזמינה אותך למסיבות ערב. והכל הוא לחלוטין שלך.
כנס אל הדירה ישירות מהלובי המהמם (והמשופץ החדש) של הבניין והתרגש. פתח את הדלת ותתמלא התפעלות עם סלון בגובה כפול, מדרגות דרמטיות, סולריום אוכל עם בר מובנה, מכונת קוביות קרח, מקרר יין, מטבח מאובזר היטב, אח בעץ, סלון, מכונת כביסה ומייבש בגודל מלא חדשות לגמרי (מאוורר!), גימורים אלגנטיים, והרשימה נמשכת...
הקונספט הפתוח והמאוורר יוצר זרימה חלקה בכל הבית. למעלה. למטה. תבחר מה שמתאים לך. שניהם מצוינים. שדרג את הכל עם מוסיקת Sonos שמתנגנת בכל הבית, חימום וקירור רב-אזורים (עם מזגן מרכזי חדש שהותקן), אחסון מדהים ועוד.
המיקום הוא הכל, ובית זה באמת יש בו הכל. הקואופרטיב המרהיב הזה עם 5 דירות נמצא במרחק בלוק מהפארק המרכזי; תתרגל ליופי ולשלווה של הטבע ממש בפתח הדלת שלך (וגם בחצר שלך!) בנוסף למיקום הנוח לאטרקציה הכי נחשקת של העיר ניו יורק (הפארק המרכזי), ישנם שפע של מסעדות ושירותים בשכונה הקרובה, כמו גם אפשרויות תחבורה קלות כדי להתנייד בעיר בקלות.
שיפוצים קפיטליים אחרונים כוללים גג חדש ושיפוץ הלובי. מעלית חדשה מותקנת.
ישנו הערכה נוכחית של 1159 דולר לחודש עד דצמבר 2026.
ראה תמונות ותכנית דירה להרחבה. (נ.ב: אמי לא כלולים).
קיים רק בית אחד כזה... תהפוך אותו לשייך לך.
One-of-a-Kind Garden Sanctuary on the Upper West Side.
Welcome home to 48 West 86th Street. A stunning 3 bedroom garden duplex on the Upper West Side, within a block of Central Park, and with the most amazing private outdoor oasis - nearly 500sf of outdoor living complete with dining pergola, an outdoor grill, a pond with waterfall - all of which is surrounded by lush and mature bamboo for privacy.
This chic townhouse-style duplex home is move-in ready and offers an incredibly unique NYC experience - dramatic ceilings up to 20-ft, three spacious bedrooms, two and a half bathrooms, a solarium, a wood-burning fireplace, and a gorgeous private garden retreat. The natural gas grill tempts you to indulge in al fresco dining; the wisteria-draped pergola invites you to dinner parties. And it’s all totally yours.
Enter the apartment directly from the building's gorgeous (and newly renovated) lobby and be wowed. Open the door and take your breath away with a double-height living room, dramatic staircase, dining solarium with built-in bar, ice machine, wine fridge, well-appointed kitchen, wood-burning fireplace, lounge, brand new full-sized washer and dryer (vented!), elegant finishes, the list goes on…
The open and airy layout creates a seamless flow throughout the home. Upstairs. Downstairs. Take your pick. They’re both great. Enhance it all with Sonos music that plays throughout the house, multi-zone heating and cooling (with newly-installed brand new central air conditioning), incredible storage, and more.
Location is everything, and this home truly has it all. This stunning coop with 5 residences is within a block of Central Park; you will become accustomed to the beauty and tranquility of nature right at your doorstep (and in your backyard!) In addition to the proximity to New York City's most coveted amenity (Central Park), there is an amazing array of restaurants and conveniences in the immediate neighborhood, as well as easy transportation options for getting around the City seamlessly.
Recent capital improvements include a new roof and lobby renovation. A new elevator is being installed.
There is a current assessment of $1159/month thru December 2026.
See photos and floorplan for more. (PS: Emmys are not included).
Only one home like this exists… make it yours.
This information is not verified for authenticity or accuracy and is not guaranteed and may not reflect all real estate activity in the market. © 2026 The Real Estate Board of New York, Inc., All rights reserved.







