| ID # | RLS20073858 |
| פרטי בנין | 1 חדר שינה , 1 חדר אמבטיה , מוּסָך , 210 יחידות בבניין , בבניין יש 20 קומות 30 ימים (DOM) |
| שנת בנייה | 1963 |
| דמי תחזוקה | $1,916 |
| רכבת תחתית | 5 דקות לרכבת תחתית Q |
| 7 דקות לרכבת תחתית 6 | |
![]() |
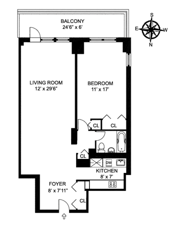
דירה מיוחדת במינה, גדולה עם חדר שינה אחד, חדר רחצה אחד, וברשותה מרפסת רחבה באיזור מצוין של הנמל העליון המזרחי.
אתם מתקבלים על ידי פרוזדור מרווח עם ארונות, שמוביל לאזור אוכל נפרד ולסלון מרשים בגובה 30 רגל, פונה דרומה ומלא באור טבעי יפה. מעבר לכך, מרפסת פרטית של 24 רגל מאריכה את חלל המחייה החוצה, המקום המושלם לקפה בבוקר או להרפיה בסוף היום.
המטבח המעודכן מעוצב באופן מחושב. חדר השינה הראשי הגדול נהנה גם מחשיפה דרומית וגם ממערבית, מה ששטף את החדר באור throughout היום. חדר הרחצה ממוקם conveniently ליד המסדרון המרכזי להוספת פרטיות.
עם קצת TLC וחזון אישי שלכם, הבית הזה מציע הזדמנות יוצאת דופן ליצור משהו באמת מיוחד.
פורטל שרמן הוא בניין ידידותי לחיות מחמד, עם שירות מלא ודלתן, כולל גג נוף מטופח, גן אחור, טרקלין בעלי מניות, מחסן, מחסן אופניים, מתקני כביסה ומנהל מגונן הנמצא בבניין. הלובי שופץ לאחרונה.
רחוב מזרח 76 מספר 363 נמצא במיקום המושלם של הנמל העליון המזרחי, סמוך למועדון הספורט של ניו יורק, בלוק אחד מאקוינוקס, במרחק קצר מהקו Q והקו 6, פארק ג’ון ג'יי וכל המסעדות והחנויות הטובות ביותר שהנמל העליון המזרחי מציע! אפשר לרכוש יחד ו-Pied-a-terres מותרות. מימון של 75%. ברוכים הבאים הביתה!
הרהיטים בוצעו בהדמיה וירטואלית בתמונות.
A truly special, oversized one-bedroom, one-bathroom cooperative home with an expansive balcony in a prime Upper East Side location.
You’re welcomed by a gracious, closet-lined foyer that opens to a separate dining area and an impressive 30-foot, south-facing living room filled with beautiful natural light. Just beyond, your own 24-foot private balcony extends the living space outdoors, the perfect setting for morning coffee or unwinding at the end of the day.
The updated galley kitchen is thoughtfully laid out. The generously sized primary bedroom enjoys both southern and western exposures, bathing the room in sunlight throughout the day. The bathroom is conveniently situated off the central hallway for added privacy.
With a touch of TLC and your personal vision, this home presents an exceptional opportunity to create something truly special.
Sherman Towers is a pet-friendly, full-service, doorman building with a landscaped roof deck, backyard garden, shareholders lounge, storage, bike room, laundry facilities and fabulous live-in resident manager. The lobby is newly renovated.
363 East 76th Street is in the perfect Upper East Side location adjacent to New York Sports Club, one block from Equinox, a short distance from both the Q and the 6 subway, John Jay Park and all the best restaurants and shops the Upper East Side has to offer! Co-purchasers and Pied-a-terres are permitted. 75% financing. Welcome Home!
Furniture has been virtually staged in the photos
This information is not verified for authenticity or accuracy and is not guaranteed and may not reflect all real estate activity in the market. © 2026 The Real Estate Board of New York, Inc., All rights reserved.







