| ID # | RLS20074351 |
| פרטי בנין | 2 חדר שינה , 2 חדר אמבטיה , 1 חצי חדר אמבטיה , מכונת מדיח כלים , שטח פנימי 1951 רגל מרובע , 181 מ”ר , 4 יחידות בבניין , בבניין יש 4 קומות 55 ימים (DOM) |
| שנת בנייה | 1920 |
| דמי תחזוקה | $883 |
| מיסים (בשנה) | $9,444 |
| אוטובוס | 3 דקות לאוטובוס B63, B67, B69 |
| 5 דקות לאוטובוס B61 | |
| 6 דקות לאוטובוס B103 | |
| רכבת תחתית | 6 דקות לרכבת תחתית F, G |
| 7 דקות לרכבת תחתית R | |
| תחנת רכבת | 0.9 מיילים לתחנת הרכבת "Atlantic Terminal" |
| 1.8 מיילים לתחנת הרכבת "Nostrand Avenue" | |
![]() |
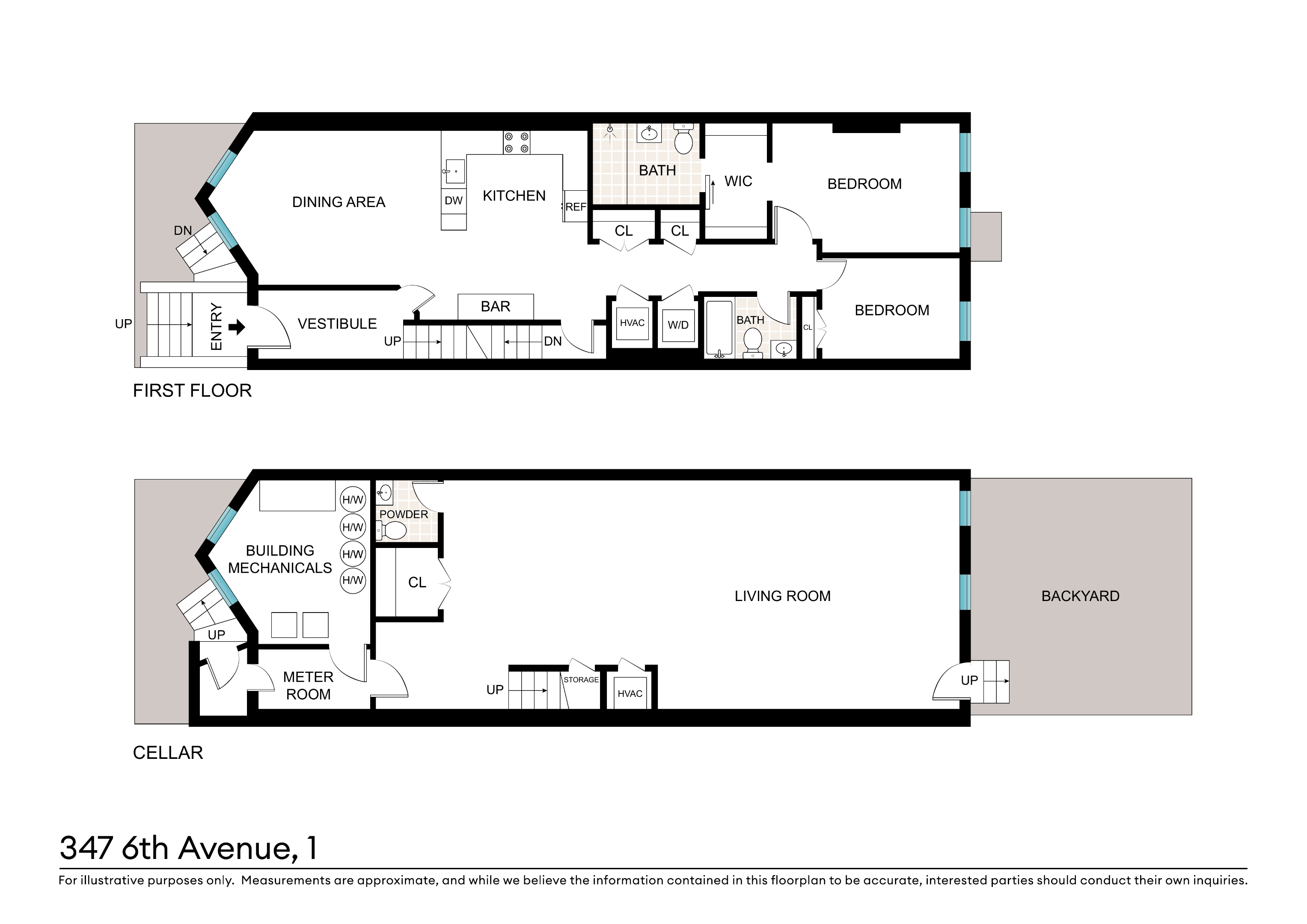
מוצגת דופלקס הסלון-גן בכתובת 347 שדרת השישי, מגורים מדהימים ששופצו באומנות, הכוללים שני חדרי שינה ושני חדרי רחצה שבהם עיצוב מעודן ואומנות יוצאת דופן נפגשים עם מגורים מודרניים עם גינה פרטית.
במיקום מצוין על שדרת השישי בפארק סלו, הרמה המהממת הזו boast ceilings גבוהים ש создают תחושה גדולה של מרחב, מראה היסטורי נשמר בצורה יפה, ואחסון מטבח מתוכנן היטב. הבית המואר הזה מחולק לשני מפלסים מעוצבים, עם חשיפות מזרחיות ומערביות framed על ידי חלונות פלה oversized, המאפשרים לאור טבעי לזרום פנימה לאורך כל היום. רמת הסלון אידיאלית לאירוח, עם תכנית פתוחה ואווירית שזורמת בקלות אל הגן למטה.
מהפנים, רצפות אלון לבן אלגנטיות ודלתות עץ עם חומרה של בולדווין קובעות את הטון של יוקרה מתונה. המטבח משלב ארונות אלון מותאמים אישית עם משטחי קונטרופ של מרמר איטלקי Calacatta Altissimo מדהים ו backsplash, בתוספת מערך של מכשירים פרימיום מ-Wolf, Sub-Zero, ו-Bosch.
הסוויטה הראשית מציעה שטח ארון נדיב וחדר רחצה נעים מצופה במרמ הת איטלקי, עם התקני קוהלר וחומרה מצופה כרום מבריק, создавая חוויית ספא בבית. רק קומה אחת מתחת, רמת הבילוי המורחבת מספקת חלל רחב עבור אזור מגורים משני, סוויטת אירוח, או משרד אורחים, עם גישה ישירה לגינה הפרטית לחיים בקלות בין פנים לחוץ.
נוחות מודרנית מבטיחה מערכת HVAC של Mitsubishi, יחידות ERV להחלפת אוויר רענן רציפה, אקוסטיקה מבית Rockwool ו-QuietRock. תכונות נוספות כוללות מכונת כביסה/מייבש GE Profile, תאורת LED חסכונית באנרגיה עם דימרים, אינטרקום וידאו, ומצלמות אבטחה פנימיות וחיצוניות. עלויות ניהול נמוכות, תקרות גבוהות, ותשומת לב מדויקת לפרטים הופכות את הפנטהאוז הבנוי החדש הזה לגלוי נדיר בלב פארק סלו, רגעים מפארק פרוספקט, חנויות מקומיות, קפה, ומסעדות לאורך השדרות השביעית והחמישית. ממוקם רק 3 בלוקים מבית הספר PS 321 ופארק פרוספקט.
תנאי ההצעה המלאים נמצאים בתוכנית הצעה הזמינה מהספונסר. מספר תיק: CD24-0195
Introducing the Parlor-Garden Duplex at 347 Sixth Avenue, a beautifully renovated two-bedroom, two-bathroom residence where refined design and exceptional craftsmanship meet modern living featuring a private backyard.
Situated on a prime Sixth Avenue block in Park Slope, this stunning parlor level boasts high ceilings that create a grand sense of space, a beautifully preserved historic mirror, and thoughtfully designed kitchen storage. Spanning two thoughtfully designed levels, this sun-filled home features east and west exposures framed by oversized Pella windows, allowing natural light to pour in throughout the day. The parlor level is ideal for entertaining, with an open and airy layout that flows effortlessly into the garden below.
Inside, elegant white oak floors and hardwood doors with Baldwin hardware set a tone of understated luxury. The kitchen pairs custom oak cabinetry with stunning Calacatta Altissimo Italian marble countertops and backsplash, complemented by a suite of premium appliances from Wolf, Sub-Zero, and Bosch.
The primary suite offers generous closet space and a serene en-suite bathroom clad in Italian marble, complete with Kohler fixtures and polished chrome hardware, creating a spa-like experience at home. Just one flight below, the expansive recreation level provides ample space for a secondary living area, entertaining lounge, or guest home office suite, with direct access to the private backyard for effortless indoor-outdoor living.
Modern comfort is ensured by a Mitsubishi HVAC system, ERV units for continuous fresh air exchange, soundproofing by Rockwool and QuietRock. Additional features include GE Profile washer/dryer, energy-efficient LED lighting with dimmers, video intercom, and interior and exterior security cameras. Low carrying costs, high ceilings, and meticulous attention to detail make this newly built penthouse a rare find in the heart of Park Slope, moments from Prospect Park, local boutiques, cafés, and restaurants along 7th and 5th Avenues. Located just 3 blocks for P.S 321 and Prospect Park.
THE COMPLETE OFFERING TERMS ARE IN AN OFFERING PLAN AVAILABLE FROM SPONSOR. FILE NUMBER: CD24-0195
This information is not verified for authenticity or accuracy and is not guaranteed and may not reflect all real estate activity in the market. © 2026 The Real Estate Board of New York, Inc., All rights reserved.







