| ID # | RLS20071037 |
| פרטי בנין | 4 חדר שינה , 5 חדר אמבטיה , 1 חצי חדר אמבטיה , שטח פנימי 7500 רגל מרובע , 697 מ”ר 45 ימים (DOM) |
| דמי תחזוקה | $12,000 |
| רכבת תחתית | 4 דקות לרכבת תחתית C, E |
| 5 דקות לרכבת תחתית 1, R, W, A | |
| 6 דקות לרכבת תחתית 6 | |
| 7 דקות לרכבת תחתית B, D, F, M | |
| 8 דקות לרכבת תחתית N, Q, J, Z | |
![]() |
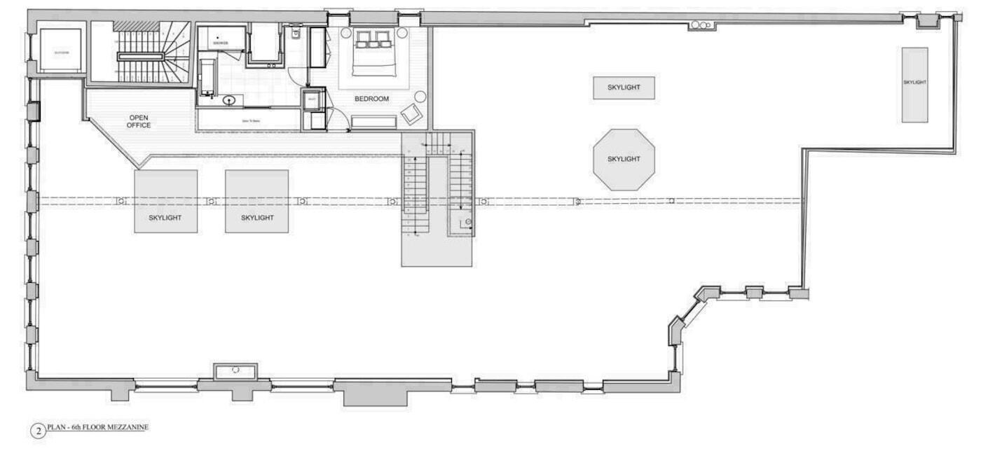
הזדמנות נדירה להיות בעלים של אחת מדירות הפנטהאוס הגדולות ביותר במנהטן דאונטאון. הדירה שנעשתה בעיצובו של פיירו מנרה ודבלה מנרה-ברגר מקסמאנרה מציעה חלל פנימי רחב בגודל של 7,500 רגל רבוע עם מרפסות חיצוניות ייחודיות בגודל של 4,200 רגל רבוע, מכוסות ופתוחות, ונופים פנורמיים של 360 מעלות. הבניין הבוטיקי שכולל רק 9 יחידות מאפשר פרטיות מירבית עם מעלית דיסקרטית הפותחת אל כניסת עץ מרשימה המובילה אל סלון מרהיב בגובה 40 על 65 רגל, שבו עמודים ותקרות מברזל יצוק מוארים שמגיעים מגובה של 16' עד 22' מתחת לסקיילייטים שמכניסים אור. חלונות ענקיים הפונים לדרום ולמערב מוסיפים עוד יותר אור, ויוצרים את החלל המושלם לאירוח עם נוף של "מגדל החירות" שמסודר בצורה מושלמת. אח עצים בגובה כמעט 6 רגל מעוצב עם שיש אראמוסה מבריק ואבן חן מוגמרת. המטבח של בולטהאופ מאלומיניום אפור כולל משטחי שיש קרארה, כיור שיש מותאם אישית ומצויד במכשירי גאגנאו, סאב זירו ומילה, כולל מכונת קפה מובנת, מים חמים מיידיים ואדונים, ואחסון גדול. רצפות עץ אלון לבן בכל מקום מובילות אותך אל סוויטת ה-master המרחבית, בדרך עוברות ליד קירות גמר ביישור ונציאני בגוון לבן רך. סוויטת ה-master המפנקת מציעה שטיחי משי וארון בגדים מותאם אישית מעץ אלון לבן שמחזיק הכל בצורה מסודרת. חדר האמבטיה הצמוד כולל skylight אוקטוגונלי מואר שמרחף מעל רצפות שיש גאודי תואמות ספרים, אמבטיית Oceanus חופשית מבית Tyrell & Laing וחדר מקלחת כפול עם כיסוי אוניקס לבן וראש מקלחת גשם. שלוש סוויטות החדרים הנוספות גדולות בנדיבות, כולן עם חדרי אמבטיה צמודים ומקום מרשים לאחסון. לא לשכוח את חדר המדיה עם סאונד היקפי Dolby 10.1 שאין דומה לו, מצויד בכסאות אולמות מרופדים, תאורה קצבית דרמטית ותקרות ודפוסי עליוניות מזדמנים למדי, מה שהופך את הצפייה במסך הפרוס לחוויה מהנה עוד יותר. ליד הקולנוע יש חבית יין מוערת מאחורי זכוכית, מבוקרת אקלים, עם מקום ל-1,500 בקבוקים כולל מקרר סאב זירו ליין ושמפניה. הבית כולל גם מערכת HVAC מתקדמת, תאורת Lutron, מערכת AV Savant ותריסים ממונעים לשליטה נוחה. לאחר אימון נעים בחדר הכושר/סטודיו היוגה בבית, ולאחר מסאז' בחדר מסאז' פרטי, תוכל ליהנות מסאונה בחדר האמבטיה בהשראת ספא שכולל חדר סאונה ל-6 אנשים עם טיפול ארומתרפי וצבע באמצעות מערכת תאורה מדויקת של 100 ראשי סיבים אופטיים המשולבת בתקרת מים מקושטת. לאחר שתהנה מיום ספא מרגיע בבית, עליך לעלות במדרגות באמצעות חדר מנות 30 רגל בגובה, בו נמצאת המעלית המוארת שמובילה אל הקומה של המזנין שבה ממוקמת חדר השינה הרביעי והספרייה שיושבות עם נוף מרהיב מעל. המשך לעלות במדרגות אל המרפסת הגג המכוסה בלוחות עץ, רמפות ודשא סינתטי. ה-4,200 רגל רבוע של אזורי ישיבה ואוכל מכוסים מלכותית משמשים חלל מגורים שני ומגיעים מצוידים במטבח חוץ מאובזר לגמרי. מעבר לקירות בבנייה בלינזית, עץ ועץ מכוסה נחושת, קיימים נופים פנורמיים המאפשרים לך לראות גם את בניין האמפייר סטייט וגם את מגדל החירות בו זמנית מתחת למקלחת חוץ של בופי. שיהיה למקום את כל מה שאתה צריך בתוך הבית שלך, חלל שמספיק עבור אספנים שגם מכיל נכון לנוח וליהנות מהנחות הבית שלך או לארח חברים מתחת לכוכבים. התכונות המייחדות נכס ניו יורקי אמיתי הן נדירות למצוא והנכס הזה מכיל את כולן ברמת עיצוב ואדריכלות שחריג מאוד אם בכלל נראתה.
383 ווסט ברודווי הוא בניין לופט קלאסי באחד הרחובות הטובים ביותר בשואו. קרבה נהדרת לחניות מעולות, מסעדות, גלריות וחיי לילה. תחזוקה נמוכה בצורה מרשימה. קונים בינלאומיים, LLC ושותפויות מתקבלים בברכה. ידידותי לחיות מחמד.
A rare opportunity to own one of downtown Manhattan's largest loft penthouses. The Piero Manara & Debla Manara-Berger, of Casamanara, designed apartment offers an expansive 7,500 sq ft interior with a gracious 4,200 sq ft of unique covered and uncovered outdoor terrace space and sweeping 360 degree views. The boutique building of just 9 units allows for the utmost in privacy with a discreet elevator that opens to an impressive wood-paneled entry leading to a spectacular 65 40 foot living room featuring up-lit original cast-iron columns and ceilings that soar from 16' to 22' under light-infusing skylights. Massive windows facing south and west add even more light to shine through, creating the perfect space to entertain with views of the Freedom Tower perfectly framed. A nearly 6-foot-high wood-burning fireplace is finished with polished Eramosa marble and a honed Cohare marble hearth. The Bulthaup kitchen in grey aluminum features Carrara marble counters, a custom-built marble sink and is expertly equipped with Gaggenau, Sub Zero and Miele appliances including built-in coffee maker, instant-hot and filtered water and a large pantry. White oak hardwood floors throughout lead you to a spacious master suite, along the way pass by venetian plaster finished walls in a soft white. The luxurious Master Suite offers silk carpeting and a beautifully outfitted white oak, custom-milled walk-in closet and vault that keeps everything neatly tucked away. The ensuite bathroom features a soaring octagonal skylight that hovers over book-matched Gaudi slab marble floors, a freestanding Oceanus soaking tub by Tyrell & Laing and a white Onyx lined double shower 'room' with rain-head shower. The three additional bedroom suites are generously sized, all with ensuite bathrooms and an impressive amount of closet space. Not to be forgotten is the Dolby 10.1 surround sound Media room unlike any other, outfitted with plush upholstered stadium seating, dramatic cove lighting and ultra-suede lined ceilings and walls to make viewing the large projection screen all the more enjoyable. Next to the cinema is a 1,500-bottle, glass-encased, climate-controlled wine cellar including a Sub-Zero fridge for wine and champagne. The home also offers an advanced HVAC system, Lutron lighting, Savant AV system and motorized shades for optimal ease and control via wall-mounted iPads. After a nice workout in the home gym/yoga studio, followed by a massage in the private massage room, enjoy a steam in the spa inspired bathroom that includes a 6-person steam room with Kohler Aroma-therapy and Chroma-therapy via a 100-head fibre-optic lighting system integrated into the mosaic tiled barrel ceiling. After basking in a relaxing spa day at home, head upstairs via a 30-foot-tall, glass-peaked bulkhead housing the illuminated stairwell leading to the mezzanine floor where the 4th bedroom and library is perfectly situated overlooking the grandness below. Continue up the stairs to the rooftop terrace covered in wood decking, pavers and simulated lawn. The 4,200sf of gracious covered seating and dining areas act as a second living space and come complete with a fully equipped outdoor kitchen. Beyond the Balinese stone, wood and copper clad walls are panoramic views that allow you to view both the Empire State Building and the Freedom Tower simultaneously from under a Boffi outdoor shower. Have everything you need within your own home, a collector worthy space that is both perfect for relaxing and enjoying your in-home amenities or for hosting friends under the stars. The characteristics that make for a truly special New York property are hard to find and this one has them all with a level of architectural design and detailing rarely if ever seen.
383 West Broadway is a classic Loft Building on one of Soho's best blocks. Close proximity to fantastic shopping, restaurants, galleries and nightlife. Remarkably low Maintenance. International, LLC & Trust buyers welcome. Pet frie
This information is not verified for authenticity or accuracy and is not guaranteed and may not reflect all real estate activity in the market. © 2026 The Real Estate Board of New York, Inc., All rights reserved.







