להשכרה RENTAL
כתובת: ‎121 Main St
מיקוד: 12758
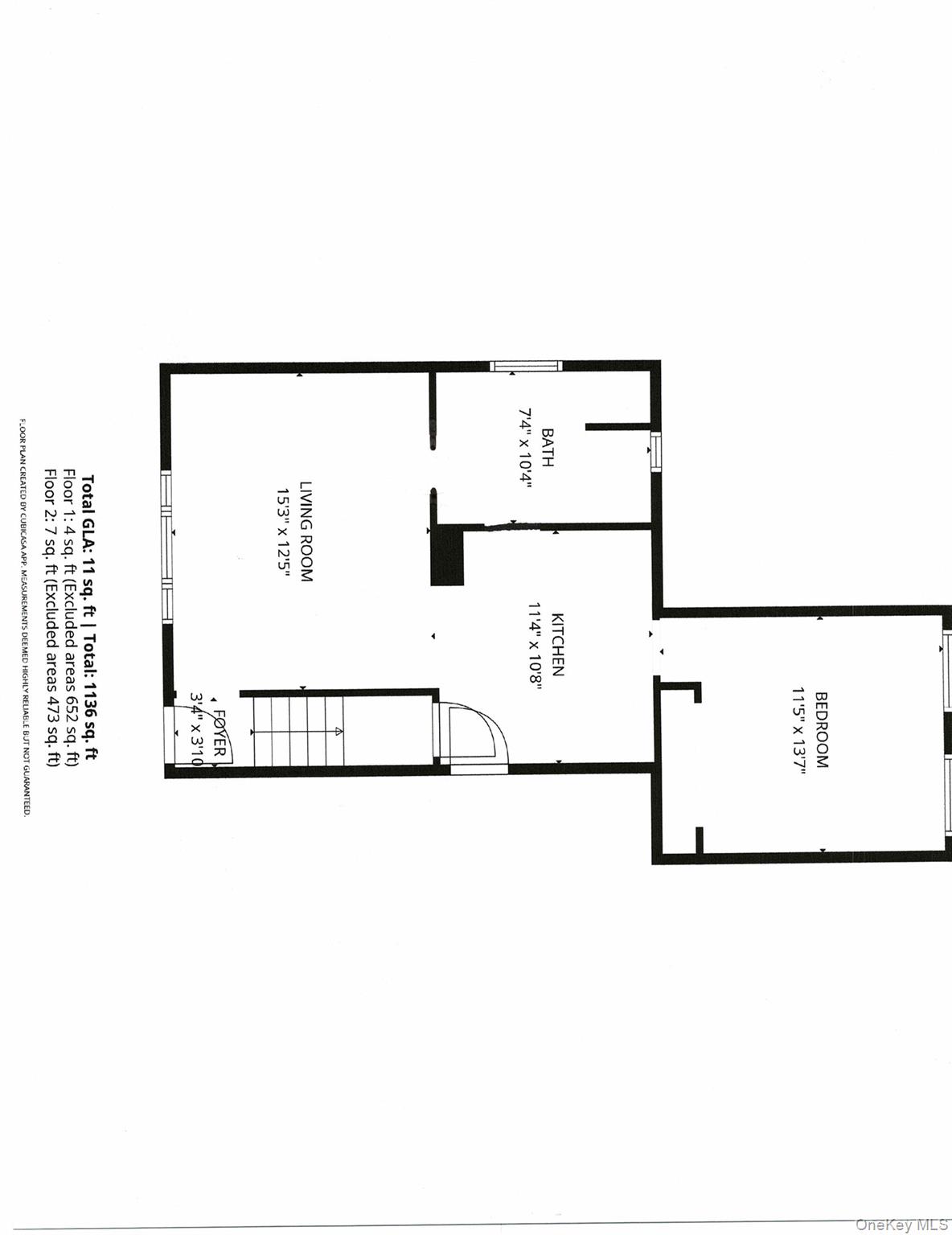
3 חדר שינה , 2 חדר אמבטיה , 1150 רגל רבוע
分享到
$2,000
6,800 ₪
MLS # 967132
עִברִית Hebrew
Profile
Lori Slattery ☎ ‍631-521-0347

$2,000 - 121 Main St, Livingston Manor, NY 12758|MLS # 967132

Property Description « עִברִית Hebrew »

ברוכים הבאים ל-Shandalee Manor House, הבית הקולוניאלי המקסים והשופץ מחדש, ממוקם בעיר המבוקשת ליווינגסטון מנור. ליווינגסטון מנור ידועה באווירה התוססת והמסבירה פנים שלה ומציעה סגנון חיים נהדר עם מבשלות מקומיות, בתי קפה חמים, חנויות ייחודיות, גלריית אמנות, המוזיאון הידוע לדיג זבובים, ועוד כל כך הרבה ממש בקצות אצבעותיכם.

הבית המודרני המשופץ הזה מציע שדרוגים מודרניים תוך שמירה על קסם קלאסי. הפנים כולל רצפות יוקרה חדשות בכל המקום, יחד עם תת-רצפה ותחתית חדשות לאיכות ונוחות מתמשכת. הבית מעודכן בקפידה עם דלתות ודפנות חדשות, ומציג עיצוב בהיר ומזמין. מערכת חשמל חדשה של 200 אמפר, תאורה חדשה, שקעים ומתגים חדשים. המטבח המדהים מצויד בארונות לבנים בסגנון שייקר, מכשירי פלדת אל-חלד ומשטחי עבודה בסגנון בלוק קצבים, מה שיוצר את המקום המושלם לבישול ואירוח.

הבית כולל שני חדרי רחצה ששופצו באופן מלא, ממוקמים בנוחות עם אחד בכל קומה, ומציעים גם פונקציונליות וגם משיכה מודרנית. בחוץ, תהנו מנכס מגודר לחלוטין המעניק פרטיות, מרחב להנאה חיצונית וגמישות נוספת.

עם שירותי מים וצנרת ציבוריים, הנכס מציע נוחות ושקט נפשי. בין אם אתם מחפשים מגורים עיקריים, מנוחת סופ"ש, הזדמנות ל-Airbnb או השכרת השקעה, הבית הזה מציב גמישות וערך יוצאים מן הכלל באחד מהיעדים הכי נחשקים בקאטסקילס.
הבעלים הוא מתווך נדל"ן מורשה במדינת ניו יורק

MLS #‎ 967132
פרטי בנין
Details
3 חדר שינה , 2 חדר אמבטיה , מכונת מדיח כלים , מכונת כביסה , גודל מגרש 0.17 דונם , שטח פנימי 1150 רגל מרובע , 107 מ”ר , בבניין יש 3 קומות
23 ימים (DOM)
שנת בנייה
Construction Year
1930
סוג דלק
Fuel Type
דלק [שמן] Oil
מרתף
Basement
מרתף שלם Full basement
房屋概況 Property Description « עִברִית Hebrew »« ENGLISH »

ברוכים הבאים ל-Shandalee Manor House, הבית הקולוניאלי המקסים והשופץ מחדש, ממוקם בעיר המבוקשת ליווינגסטון מנור. ליווינגסטון מנור ידועה באווירה התוססת והמסבירה פנים שלה ומציעה סגנון חיים נהדר עם מבשלות מקומיות, בתי קפה חמים, חנויות ייחודיות, גלריית אמנות, המוזיאון הידוע לדיג זבובים, ועוד כל כך הרבה ממש בקצות אצבעותיכם.

הבית המודרני המשופץ הזה מציע שדרוגים מודרניים תוך שמירה על קסם קלאסי. הפנים כולל רצפות יוקרה חדשות בכל המקום, יחד עם תת-רצפה ותחתית חדשות לאיכות ונוחות מתמשכת. הבית מעודכן בקפידה עם דלתות ודפנות חדשות, ומציג עיצוב בהיר ומזמין. מערכת חשמל חדשה של 200 אמפר, תאורה חדשה, שקעים ומתגים חדשים. המטבח המדהים מצויד בארונות לבנים בסגנון שייקר, מכשירי פלדת אל-חלד ומשטחי עבודה בסגנון בלוק קצבים, מה שיוצר את המקום המושלם לבישול ואירוח.

הבית כולל שני חדרי רחצה ששופצו באופן מלא, ממוקמים בנוחות עם אחד בכל קומה, ומציעים גם פונקציונליות וגם משיכה מודרנית. בחוץ, תהנו מנכס מגודר לחלוטין המעניק פרטיות, מרחב להנאה חיצונית וגמישות נוספת.

עם שירותי מים וצנרת ציבוריים, הנכס מציע נוחות ושקט נפשי. בין אם אתם מחפשים מגורים עיקריים, מנוחת סופ"ש, הזדמנות ל-Airbnb או השכרת השקעה, הבית הזה מציב גמישות וערך יוצאים מן הכלל באחד מהיעדים הכי נחשקים בקאטסקילס.
הבעלים הוא מתווך נדל"ן מורשה במדינת ניו יורק

Welcome to Shandalee Manor House, this newly renovated, charming Colonial nestled in the highly sought-after town of Livingston Manor. Known for its vibrant and welcoming atmosphere, Livingston Manor offers an incredible lifestyle with local breweries, cozy cafes, unique shops, an art gallery, the renowned Fly Fishing Museum, and so much more right at your fingertips.

This beautifully updated home offers modern upgrades while maintaining classic charm. The interior features new luxury flooring throughout, along with brand-new subfloors and underlayment for lasting quality and comfort. Thoughtfully updated with new doors and molding, the home showcases a bright and inviting design. Brand new 200 amp electric, all new lighting, outlets and switches. The stunning kitchen is equipped with white shaker cabinets, stainless steel appliances, and stylish butcher block countertops, creating the perfect space for cooking and entertaining.

The home includes two fully renovated bathrooms, conveniently located with one on each floor, offering both functionality and modern appeal. Outside, enjoy a fully fenced property providing privacy, space for outdoor enjoyment, and added versatility.

With public water and sewer services, this property offers convenience and peace of mind. Whether you are searching for a primary residence, weekend getaway, Airbnb opportunity, or investment rental, this home presents exceptional flexibility and value in one of the Catskills’ most desirable destinations.
Owner is NYS Licensed Associate Real Estate Broker

This information is not verified for authenticity or accuracy and is not guaranteed and may not reflect all real estate activity in the market. Listing courtesy of Signature Premier Properties © 2026

Courtesy of Signature Premier Properties

公司: ‍631-751-2111




分享 Share
$2,000
להשכרה RENTAL
MLS # 967132
‎121 Main St
Livingston Manor, NY 12758
3 חדר שינה , 2 חדר אמבטיה , 1150 רגל רבוע


Listing Agent(s):‎
Lori Slattery
Lic. #‍10301213637
☎ ‍631-521-0347
משרד: ‍631-751-2111
请说您在SAMAKI.COM看此广告
请也给我MLS # 967132