| MLS # | 963607 |
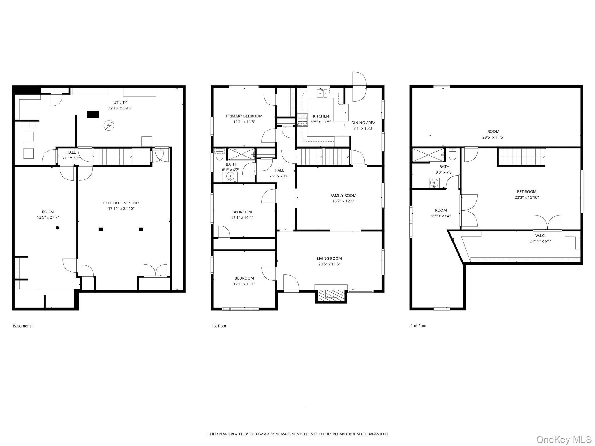
| פרטי בנין | 4 חדר שינה , 2 חדר אמבטיה , מכונת מדיח כלים , מכונת כביסה , מייבש כביסה , מוּסָך , מזגן , גודל מגרש 0.13 דונם , שטח פנימי 1936 רגל מרובע , 180 מ”ר 1 ימים (DOM) |
| שנת בנייה | 1928 |
| מיסים (בשנה) | $10,603 |
| סוג דלק | גז טבעי Gas |
| מזגן | מזגן ראשי Central Air |
| מרתף | מרתף שלם Full basement |
| סוג גרז' | גרז' לא מצורף Detached |
| תחנת רכבת | 0.8 מיילים לתחנת הרכבת "Malverne" |
| 0.9 מיילים לתחנת הרכבת "Rockville Centre" | |
![]() |
הבית רחב הידיים הזה עם 4 חדרי שינה ו-2 חדרי אמבטיה הוא ההזדמנות המושלמת לקונים שמעוניינים להתאים וליצור את המגורים של החלומות שלהם.
עם חדר שינה ראשי ענק עם ממדי ענק ואור טבעי שופע, לבית הזה יש פוטנציאל מדהים להרחבה, לעיצוב מחדש או לעדכונים מודרניים. הפריסה הגמישה מספקת שטח מגורים נרחב, חדרי שינה נוספים בגודל נאה, ומקום לדמיין מחדש את המטבח והאמבטיות לפי טעמך האישי.
עם מתאר יציב ובמרחב אינסופי של אפשרויות, הבית שדורש שיפוץ הזה אידיאלי למשקיעים, קבלנים, או בעלי בתים מוכנים להוסיף ערך ולבנות הון עצמי.
הביאו את החזון שלכם והפכו את הבית הזה למשהו באמת מיוחד!
Read the English version or choose another language
This information is not verified for authenticity or accuracy and is not guaranteed and may not reflect all real estate activity in the market. Listing courtesy of Coldwell Banker Reliable R E © 2026







