בית HOUSE
כתובת: ‎3144 Sands Place
מיקוד: 10461
2 משפחות , 4 חדר שינה , 3 חדר אמבטיה
分享到
$799,999
2,700,000 ₪
ID # 963085
עִברִית Hebrew
Are you the listing agent? Sign up to add your name and cell #
eXp Realty משרד: ‍888-276-0630

$799,999 - 3144 Sands Place, הברונקס Bronx, NY 10461|ID # 963085

Property Description « עִברִית Hebrew »

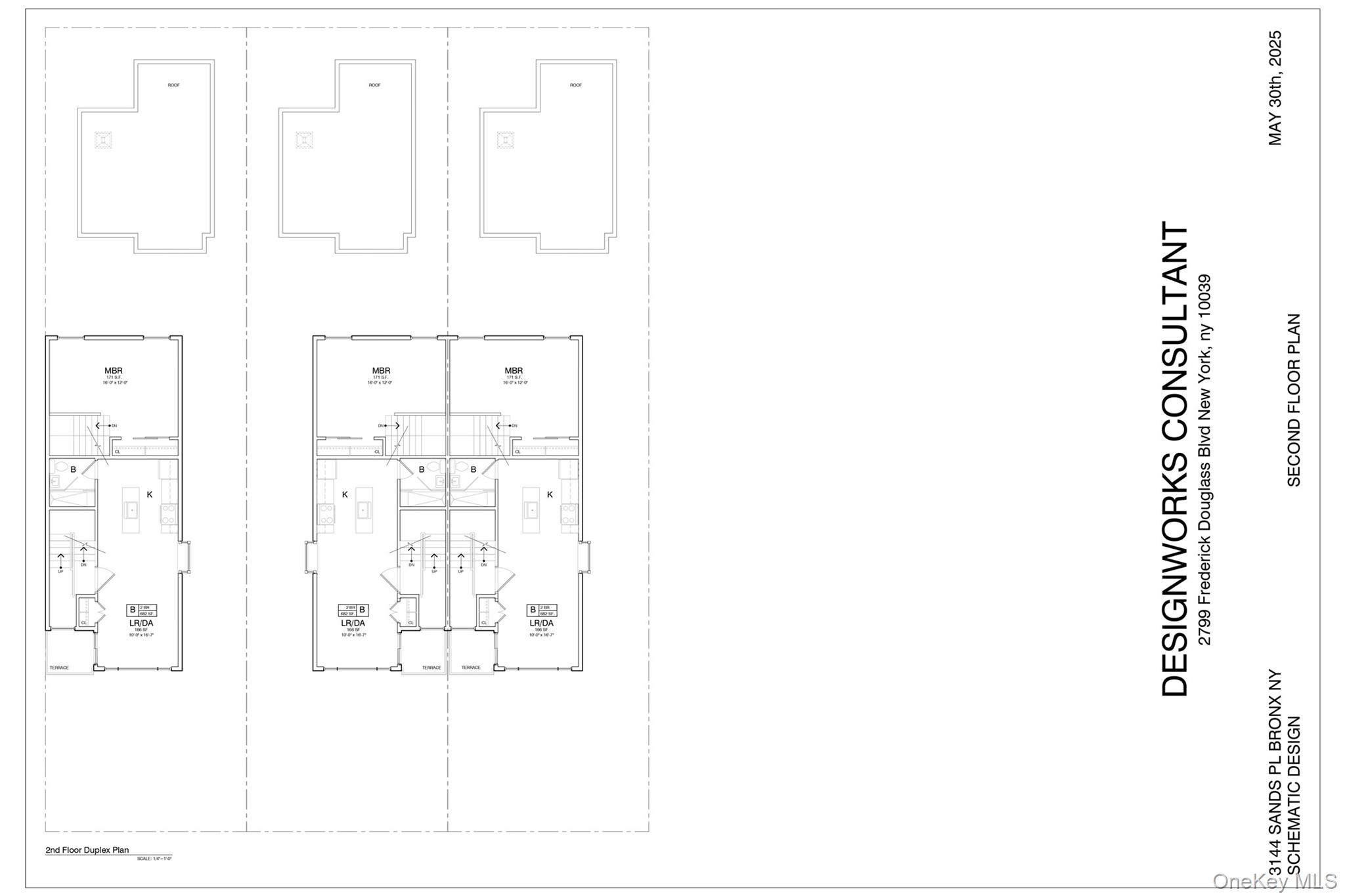
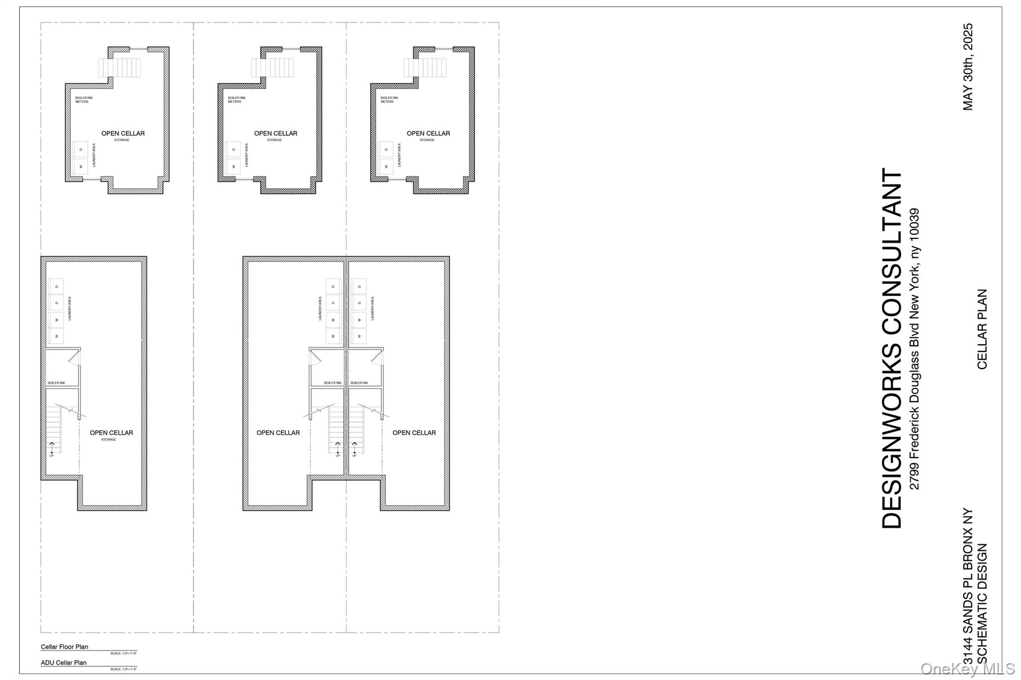
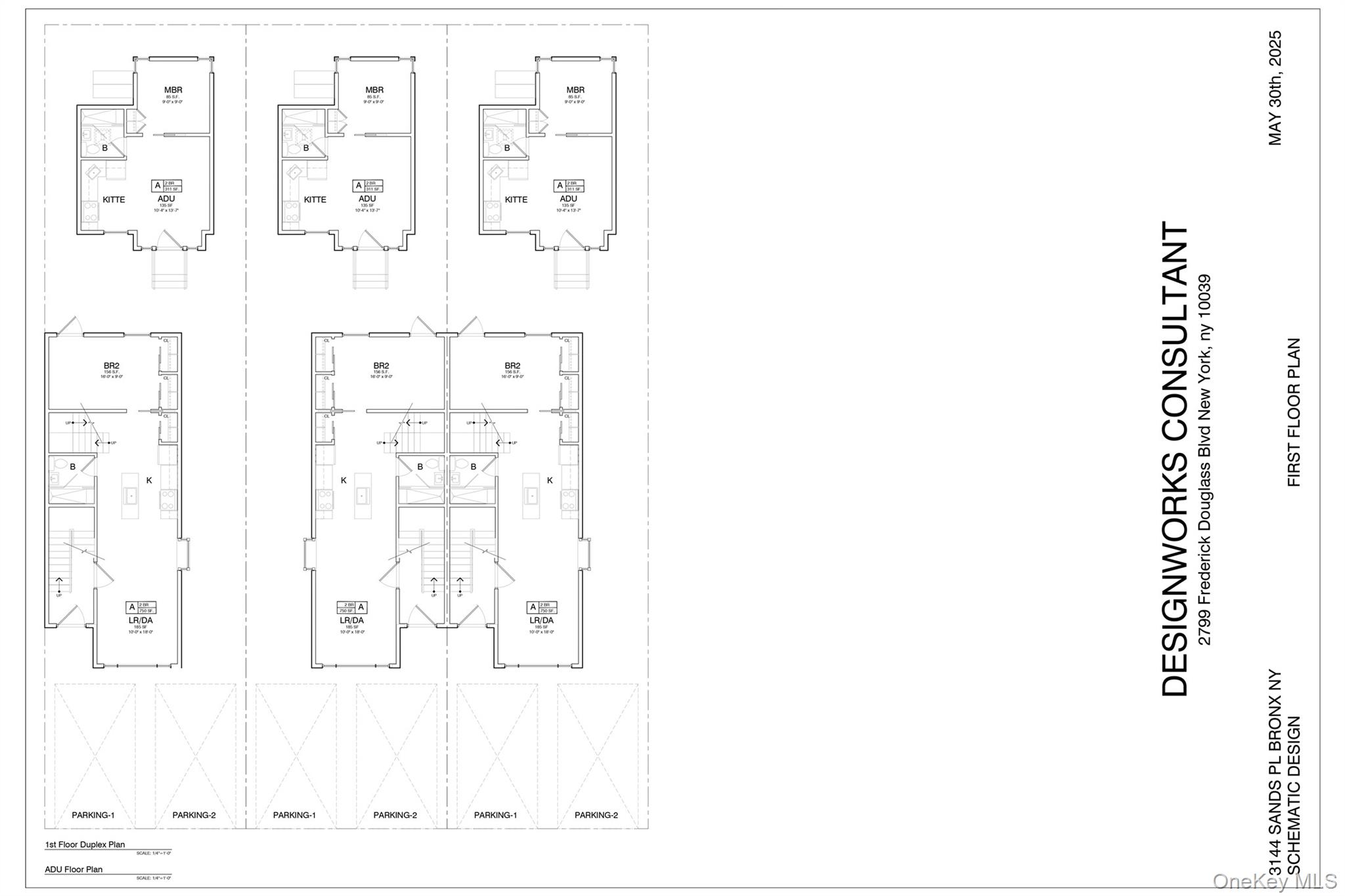
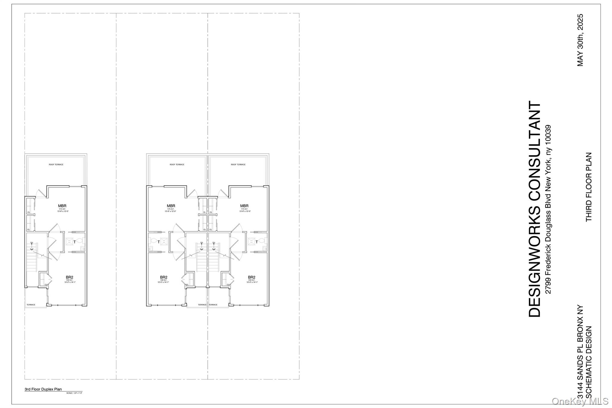
הנה עסקת פיתוח נדירה במיקום ראשון בפלהאם ביי. 3144 סנדס פלייס (מגרש 50x100) נמכרת יחד עם 3146 סנדס פלייס הסמוכה (מגרש ריק 25x100) בעסקת חבילה במחיר 999,999 דולר, מציעה מגרש משולב של 75x100 (7,500 רגל שטח) עם פוטנציאל פיתוח מרובה. לאחר ניתוח זונינג ארכיטקטוני, ישנן אפשרויות לבנאים המבקשים למקסם את האתר. אפשרות 1 כוללת פיצול הנכס לשלושה מגרשים של 25x100 ובניית שלושה בתים ברוחב 15 רגל כל אחד, בגודל של כ-1,500 רגל שטח כל אחד, מעוצבים בתכניות דיור משולבות עם ADUs אחוריים, מה שמאפשר פוטנציאל כולל של 6 עד 9 יחידות, בהתאם לה configuraation סופית. אפשרות 2 כוללת שיפוץ הבית הקיים על המגרש של 50x100, המרת המוסך ל-ADU עם 2 חדרי שינה בגודל של כ-800 רגל שטח עם מטבח ואמבטיה, ובניית בית נוסף בגודל 1,500 רגל שטח עם ADU אחורי, מה שיוצר פוטנציאל כולל של 6 יחידות (2 בתים למשפחה דו משפחתית ו-2 ADUs למשפחה אחת). כבר קיימות אישורים לגידור ולפריקות, והשרטוטים הסכמטיים עבור אפשרות 1 כלולים בתמונות כדי להציג את הקונספט המוצע לעיצוב. רק בדקת הליכה קצרה לרכבת ה-6 על שדרות ווסטצ'סטר, קרוב לחנויות, מסעדות, בתי ספר, ומספר דקות ל-I-95, הפארק לאורך נהר הטיול של האץ'ינסון ופארק פלהם ביי - מה שהופך את המיקום הזה לנוח מאוד שימשיך למשוך ביקוש חזק של שוכרים.

ID #‎ 963085
פרטי בנין
Details
2 משפחות , 4 חדר שינה , 3 חדר אמבטיה , מוּסָך , מזגן , גודל מגרש 0.11 דונם , 2 יחידות בבניין
1 ימים (DOM)
שנת בנייה
Construction Year
1920
מיסים (בשנה)
Taxes
(per year)
$6,421
סוג חום
Heat type
מים חמים Hot water
מזגן Air
Conditioning
מזגן קיר Wall Unit AC
סוג גרז'
Garage Type
גרז' לא מצורף Detached
Are you the listing agent? Sign up to add your name/photo/cell to your flyers. helpdesk@Samaki.com
房屋概況 Property Description « עִברִית Hebrew »« ENGLISH »

הנה עסקת פיתוח נדירה במיקום ראשון בפלהאם ביי. 3144 סנדס פלייס (מגרש 50x100) נמכרת יחד עם 3146 סנדס פלייס הסמוכה (מגרש ריק 25x100) בעסקת חבילה במחיר 999,999 דולר, מציעה מגרש משולב של 75x100 (7,500 רגל שטח) עם פוטנציאל פיתוח מרובה. לאחר ניתוח זונינג ארכיטקטוני, ישנן אפשרויות לבנאים המבקשים למקסם את האתר. אפשרות 1 כוללת פיצול הנכס לשלושה מגרשים של 25x100 ובניית שלושה בתים ברוחב 15 רגל כל אחד, בגודל של כ-1,500 רגל שטח כל אחד, מעוצבים בתכניות דיור משולבות עם ADUs אחוריים, מה שמאפשר פוטנציאל כולל של 6 עד 9 יחידות, בהתאם לה configuraation סופית. אפשרות 2 כוללת שיפוץ הבית הקיים על המגרש של 50x100, המרת המוסך ל-ADU עם 2 חדרי שינה בגודל של כ-800 רגל שטח עם מטבח ואמבטיה, ובניית בית נוסף בגודל 1,500 רגל שטח עם ADU אחורי, מה שיוצר פוטנציאל כולל של 6 יחידות (2 בתים למשפחה דו משפחתית ו-2 ADUs למשפחה אחת). כבר קיימות אישורים לגידור ולפריקות, והשרטוטים הסכמטיים עבור אפשרות 1 כלולים בתמונות כדי להציג את הקונספט המוצע לעיצוב. רק בדקת הליכה קצרה לרכבת ה-6 על שדרות ווסטצ'סטר, קרוב לחנויות, מסעדות, בתי ספר, ומספר דקות ל-I-95, הפארק לאורך נהר הטיול של האץ'ינסון ופארק פלהם ביי - מה שהופך את המיקום הזה לנוח מאוד שימשיך למשוך ביקוש חזק של שוכרים.

Read the English version or choose another language

This information is not verified for authenticity or accuracy and is not guaranteed and may not reflect all real estate activity in the market. Listing courtesy of eXp Realty © 2026

Courtesy of eXp Realty

公司: ‍888-276-0630




分享 Share
$799,999
בית HOUSE
ID # 963085
‎3144 Sands Place
Bronx, NY 10461
2 משפחות , 4 חדר שינה , 3 חדר אמבטיה


Listing Agent(s):‎
Are you the listing agent? Sign up to add your name and cell #‎
משרד: ‍888-276-0630
请说您在SAMAKI.COM看此广告
请也给我ID # 963085