קואופרטיב CO-OP
כתובת: ‎590 E Third Street #2D
מיקוד: 10553
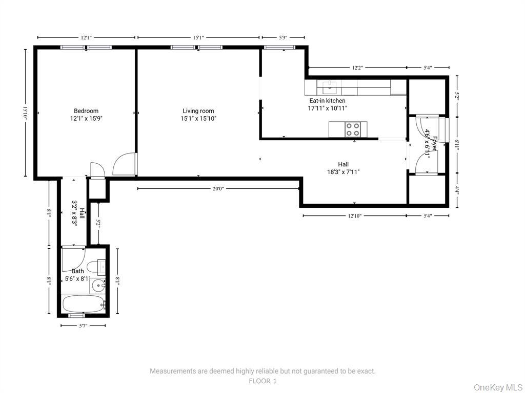
1 חדר שינה , 1 חדר אמבטיה , 969 רגל רבוע
分享到
$160,000
544,000 ₪
ID # 960773
עִברִית Hebrew
Are you the listing agent? Sign up to add your name and cell #
YourHomeSold Guaranteed Realty משרד: ‍718-324-6060

$160,000 - 590 E Third Street #2D, Mount Vernon, NY 10553|ID # 960773

Property Description « עִברִית Hebrew »

דירה משותפת יפה ומטופחת עם חדר שינה אחד ממוקמת במונט ורנון, גובלת ישירות בכפר פלהם. תהנו מהנוחות להיות רק רגעים מעמדת מטרו-נורת של פלהם, מסעדות, חנויות וצרכים יומיומיים, תוך כדי הנאה ממחיר אטרקטיבי יותר.

היחידה המנוהלת היטב מציעה רצפות עץ, פרטי קישוט קלאסיים, שטח ארון גדול ואור טבעי מצוין בכל מקומותיה. הפריסה הפונקציונלית כוללת מטבח גדול לאוכל עם ארונות ומכשירים מעודכנים, חדר אוכל פורמלי נפרד אידיאלי לאירוח או לעבודה מהבית, וחדר אמבטיה מעודכן בטוב טעם. חדר השינה המוגדל מכיל בנוחות מיטת קינג עם רהיטים נוספים ומקבל אור שמש טבעי יפה במהלך כל היום.

הבניין כולל מכבסה באתר ואחסון זמין לנוחות נוספת. הנוסעים יעריכו את המרחק הקצר להליכה לתחנת מטרו-נורת של פלהם עם נסיעה של כ-30 דקות לטרמינל גרנד סנטרל. אוטובוס הבי-ליין עוצר ממש מול הבניין, והכבישים המהירים והפארקים נמצאים במרחק של דקות ספורות.

זוהי הזדמנות נדירה לרכוש בית מרווח במיקום מעולה ממש על גבול פלהם, המציעה נוחות, מרחב וערך יוצא דופן. קבעו את הביקור הפרטי שלכם היום.

ID #‎ 960773
פרטי בנין
Details
1 חדר שינה , 1 חדר אמבטיה , מכונת מדיח כלים , מכונת כביסה , מזגן , שטח פנימי 969 רגל מרובע , 90 מ”ר
22 ימים (DOM)
שנת בנייה
Construction Year
1900
דמי תחזוקה
Maintenance Fees
$825
מזגן Air
Conditioning
מזגן קיר Wall Unit AC
Are you the listing agent? Sign up to add your name/photo/cell to your flyers. helpdesk@Samaki.com
房屋概況 Property Description « עִברִית Hebrew »« ENGLISH »

דירה משותפת יפה ומטופחת עם חדר שינה אחד ממוקמת במונט ורנון, גובלת ישירות בכפר פלהם. תהנו מהנוחות להיות רק רגעים מעמדת מטרו-נורת של פלהם, מסעדות, חנויות וצרכים יומיומיים, תוך כדי הנאה ממחיר אטרקטיבי יותר.

היחידה המנוהלת היטב מציעה רצפות עץ, פרטי קישוט קלאסיים, שטח ארון גדול ואור טבעי מצוין בכל מקומותיה. הפריסה הפונקציונלית כוללת מטבח גדול לאוכל עם ארונות ומכשירים מעודכנים, חדר אוכל פורמלי נפרד אידיאלי לאירוח או לעבודה מהבית, וחדר אמבטיה מעודכן בטוב טעם. חדר השינה המוגדל מכיל בנוחות מיטת קינג עם רהיטים נוספים ומקבל אור שמש טבעי יפה במהלך כל היום.

הבניין כולל מכבסה באתר ואחסון זמין לנוחות נוספת. הנוסעים יעריכו את המרחק הקצר להליכה לתחנת מטרו-נורת של פלהם עם נסיעה של כ-30 דקות לטרמינל גרנד סנטרל. אוטובוס הבי-ליין עוצר ממש מול הבניין, והכבישים המהירים והפארקים נמצאים במרחק של דקות ספורות.

זוהי הזדמנות נדירה לרכוש בית מרווח במיקום מעולה ממש על גבול פלהם, המציעה נוחות, מרחב וערך יוצא דופן. קבעו את הביקור הפרטי שלכם היום.

Read the English version or choose another language

This information is not verified for authenticity or accuracy and is not guaranteed and may not reflect all real estate activity in the market. Listing courtesy of YourHomeSold Guaranteed Realty © 2026

Courtesy of YourHomeSold Guaranteed Realty

公司: ‍718-324-6060




分享 Share
$160,000
קואופרטיב CO-OP
ID # 960773
‎590 E Third Street
Mount Vernon, NY 10553
1 חדר שינה , 1 חדר אמבטיה , 969 רגל רבוע


Listing Agent(s):‎
Are you the listing agent? Sign up to add your name and cell #‎
משרד: ‍718-324-6060
请说您在SAMAKI.COM看此广告
请也给我ID # 960773