דירה CONDO
כתובת: ‎325 Grand Avenue #A
מיקוד: 11238
2 חדר שינה , 2 חדר אמבטיה , 1 חצי חדר אמבטיה , 1071 רגל רבוע
分享到
$1,475,000
5,000,000 ₪
ID # RLS20070366
עִברִית Hebrew
Are you the listing agent? Sign up to add your name and cell #
Compass משרד: ‍212-913-9058

$1,475,000 - 325 Grand Avenue #A, הברונקס Clinton Hill, NY 11238|ID # RLS20070366

Property Description « עִברִית Hebrew »

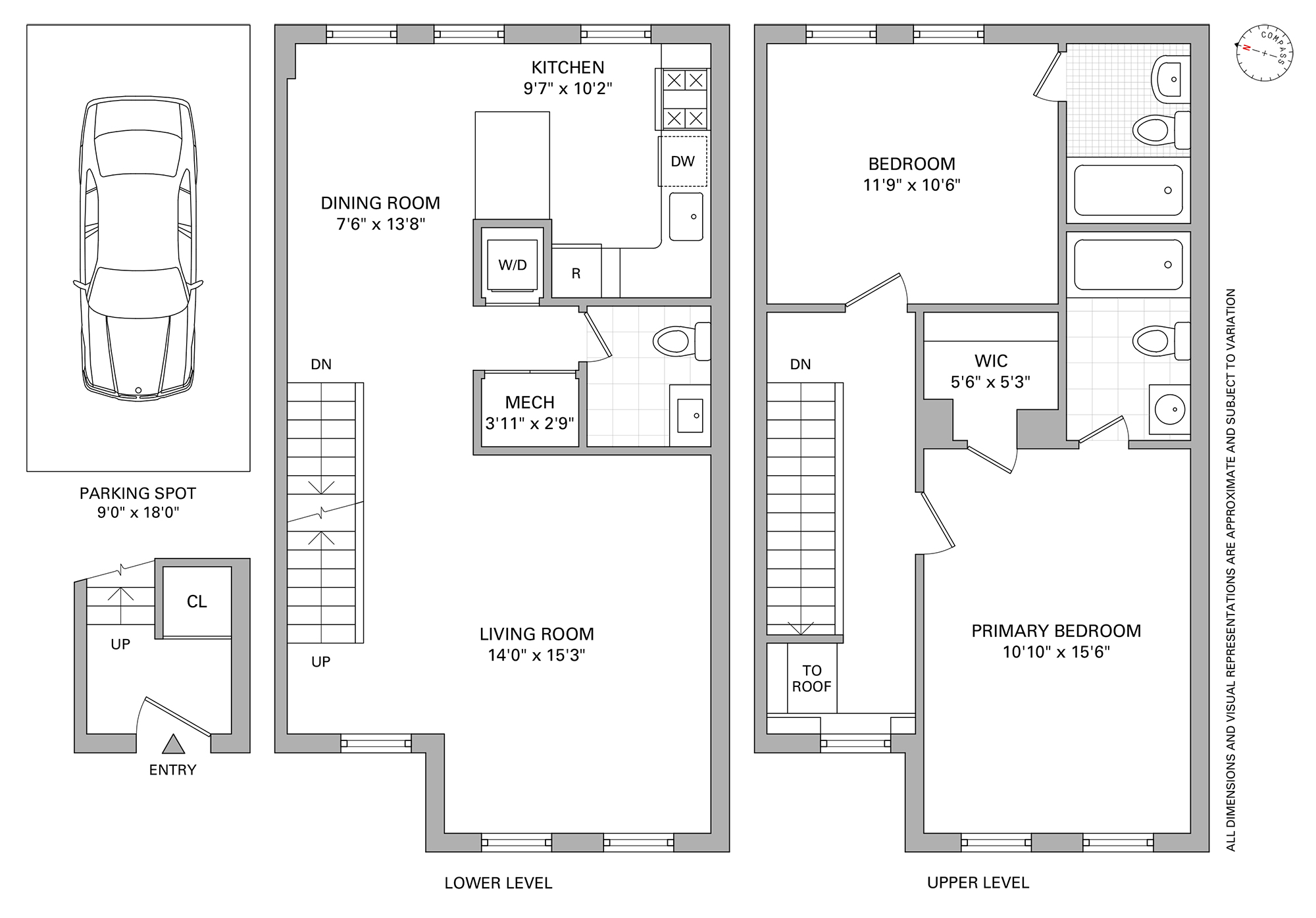
ברוך הבא ל-325 גרנד אווי, יחידה A, דירת דופלקס מעוצבת להפליא בהיסטורית קלינטון היל, המציעה את הנוחות הייחודית של ברוקלין עם מקום חניה פרטי מסודר ומגודר.

משופצת בשנת 2023, הקומה הראשית מציעה אזור מגורים מרווח עם חלונות oversized וחשיפה לכיוון מערב, הממלאת את הבית באור טבעי. במטבח המשודרג יש אי ושיש משיש עם מושבים, לצד אזור אוכל ייעודי - אידיאלי למגורים יומיומיים. המטבח המואר בחלונות משלים את העיצוב החדש עם ארונות ומכשירים חדישים, כולל מקרר ומדיח כלים אינטגרטיביים מבית בוש, כיריים בגז מבית GE, ומיקרוגל מפריגידר.

מלמעלה, חדר השינה הראשי הוא מפלט אמיתי מהקצב העירוני, משקיף על הרחוב המקביל לעצים ויכול בקלות להכיל מיטת קינג. סוויטה זו כוללת ארון בגדים מותאם אישית ו חדר רחצה צמוד. חדר רחצה צמוד חדש נוסף בחדר השינה השני בקומה זו.

מכונת כביסה/מייבש ודלת שירות בקומה הראשית מוסיפים לנוחות של החיים בעיר. התחושה המפוארת של החלל הכללי מונפת עם פרטי אריחים מותאמים אישית, טיפולים חלוניים מותאמים, תאורה שקועה ורצפות עץ, creating אמביינט חמים ומטופח ביום ובלילה.

קלינטון היל ידועה ברחובותיה המקבילים לעצים, האנרגיה ה"טובה ביותר של ברוקלין" והשפעות יצירתיות, עם מקומות בולטים לאכול, לשתות ולחקור שזורות בחיי היומיום. הפייבוריטים המקומיים כוללים את Place des Fêtes, Speedy Romeo, Bar Laika, Entre Nous, Commune Cafe ו-Locanda Vini e Olii. תהנו מאמנות חוצות וצמחייה בפארק פסלי פראט ואופציות מזון נוחות ב-Key Foods וב-The Food Emporium הסמוכים. קרוב לבידור וקניות, מרכז ברקליס והמולות אטלנטיק נמצאים ממש תחנה אחת ברכבת. ממוקם בנוחות בין רכבת C בשדרות קלינטון-וושינגטון ורכבת G בשדרות קלינטון-וושינגטון או קלסון, דירה זו מכילה את כל מה שאתה צריך לחיים מפוארים בברוקלין.

ID #‎ RLS20070366
פרטי בנין
Details
2 חדר שינה , 2 חדר אמבטיה , 1 חצי חדר אמבטיה , מכונת מדיח כלים , שטח פנימי 1071 רגל מרובע , 99 מ”ר , 2 יחידות בבניין , בבניין יש 3 קומות
44 ימים (DOM)
שנת בנייה
Construction Year
1989
דמי תחזוקה
Maintenance Fees
$500
מיסים (בשנה)
Taxes
(per year)
$7,368
אוטובוס
Bus
1 דקות לאוטובוס B52
3 דקות לאוטובוס B38, B48
5 דקות לאוטובוס B25, B26
7 דקות לאוטובוס B45, B69
8 דקות לאוטובוס B44
9 דקות לאוטובוס B44+
10 דקות לאוטובוס B49, B65
רכבת תחתית
Subway
4 דקות לרכבת תחתית G
6 דקות לרכבת תחתית C
10 דקות לרכבת תחתית S
תחנת רכבת
LIRR
0.7 מיילים לתחנת הרכבת "Atlantic Terminal"
0.9 מיילים לתחנת הרכבת "Nostrand Avenue"
Are you the listing agent? Sign up to add your name/photo/cell to your flyers. helpdesk@Samaki.com
房屋概況 Property Description « עִברִית Hebrew »« ENGLISH »

ברוך הבא ל-325 גרנד אווי, יחידה A, דירת דופלקס מעוצבת להפליא בהיסטורית קלינטון היל, המציעה את הנוחות הייחודית של ברוקלין עם מקום חניה פרטי מסודר ומגודר.

משופצת בשנת 2023, הקומה הראשית מציעה אזור מגורים מרווח עם חלונות oversized וחשיפה לכיוון מערב, הממלאת את הבית באור טבעי. במטבח המשודרג יש אי ושיש משיש עם מושבים, לצד אזור אוכל ייעודי - אידיאלי למגורים יומיומיים. המטבח המואר בחלונות משלים את העיצוב החדש עם ארונות ומכשירים חדישים, כולל מקרר ומדיח כלים אינטגרטיביים מבית בוש, כיריים בגז מבית GE, ומיקרוגל מפריגידר.

מלמעלה, חדר השינה הראשי הוא מפלט אמיתי מהקצב העירוני, משקיף על הרחוב המקביל לעצים ויכול בקלות להכיל מיטת קינג. סוויטה זו כוללת ארון בגדים מותאם אישית ו חדר רחצה צמוד. חדר רחצה צמוד חדש נוסף בחדר השינה השני בקומה זו.

מכונת כביסה/מייבש ודלת שירות בקומה הראשית מוסיפים לנוחות של החיים בעיר. התחושה המפוארת של החלל הכללי מונפת עם פרטי אריחים מותאמים אישית, טיפולים חלוניים מותאמים, תאורה שקועה ורצפות עץ, creating אמביינט חמים ומטופח ביום ובלילה.

קלינטון היל ידועה ברחובותיה המקבילים לעצים, האנרגיה ה"טובה ביותר של ברוקלין" והשפעות יצירתיות, עם מקומות בולטים לאכול, לשתות ולחקור שזורות בחיי היומיום. הפייבוריטים המקומיים כוללים את Place des Fêtes, Speedy Romeo, Bar Laika, Entre Nous, Commune Cafe ו-Locanda Vini e Olii. תהנו מאמנות חוצות וצמחייה בפארק פסלי פראט ואופציות מזון נוחות ב-Key Foods וב-The Food Emporium הסמוכים. קרוב לבידור וקניות, מרכז ברקליס והמולות אטלנטיק נמצאים ממש תחנה אחת ברכבת. ממוקם בנוחות בין רכבת C בשדרות קלינטון-וושינגטון ורכבת G בשדרות קלינטון-וושינגטון או קלסון, דירה זו מכילה את כל מה שאתה צריך לחיים מפוארים בברוקלין.

Read the English version or choose another language

This information is not verified for authenticity or accuracy and is not guaranteed and may not reflect all real estate activity in the market. © 2026 The Real Estate Board of New York, Inc., All rights reserved.

Courtesy of Compass

公司: ‍212-913-9058




分享 Share
$1,475,000
דירה CONDO
ID # RLS20070366
‎325 Grand Avenue
Brooklyn, NY 11238
2 חדר שינה , 2 חדר אמבטיה , 1 חצי חדר אמבטיה , 1071 רגל רבוע


Listing Agent(s):‎
Are you the listing agent? Sign up to add your name and cell #‎
משרד: ‍212-913-9058
请说您在SAMAKI.COM看此广告
请也给我ID # RLS20070366