| MLS # | 957708 |
| פרטי בנין | 3 חדר שינה , 2 חדר אמבטיה , מכונת מדיח כלים , מכונת כביסה , מזגן , גודל מגרש 0.36 דונם , שטח פנימי 1112 רגל מרובע , 103 מ”ר 41 ימים (DOM) |
| שנת בנייה | 2026 |
| סוג דלק | גז טבעי Gas |
| סוג חום | אוויר חם Hot air |
| מזגן | מזגן ראשי Central Air |
| תחנת רכבת | 6.2 מיילים לתחנת הרכבת "Port Jefferson" |
| 8.3 מיילים לתחנת הרכבת "Yaphank" | |
![]() |
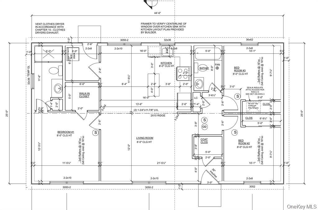
מעולם לא נראה, בנייה חדשה במחיר נגיש ברוקי פוינט! הבית החדש בסגנון ראנצ' כולל 3 חדרי שינה ו-2 חדרי אמבטיה מלאים עם תכנון פתוח מחושב ותקרות בגובה 9 רגל בכל רחבי הבית. הסלון המרווח זורם באופן חלק לקיץ-אכול, הכולל ארונות בצבע לבן, מכשירי חשמל מפלדת Stainless Steel ואזור אוכל פתוח—אידיאלי לחיי יום יום ולאירוח. אי מטבח אופציונלי. הסוויטה הראשית כוללת חדר אמבטיה מלא פרטי וארון בגדים משולב. שני חדרי שינה נוספים וחדר אמבטיה מלא במסדרון מספקים מקום מגונן נוח למשפחה או לאורחים. חדר רחצה פונקציונלי עם חיבורי כביסה מציע גישה נוחה לחצר האחורית. הדגשים נוספים כוללים חימום בגז, מיזוג אוויר מרכזי ושירותים תת קרקעיים. מחסן צמוד לרכב אחד זמין בתשלום נוסף. הזדמנות נדירה לבעלות על בית חדש במחיר נגיש ברוקי פוינט—אל תפספסו את זה.
Never before seen, affordable new construction in Rocky Point! This brand-new ranch-style home offers 3 bedrooms and 2 full bathrooms with a thoughtfully designed open floor plan and soaring 9' Ceilings throughout. The spacious living room flows seamlessly into the eat-in kitchen, featuring white cabinetry, stainless steel appliances, and an open dining area—ideal for everyday living and entertaining. Optional Kitchen Island The primary suite includes a private full bathroom and a walk-in closet. Two additional bedrooms and a full hall bathroom provide comfortable accommodations for family or guests. A functional mudroom with laundry hookups offers convenient access to the backyard. Additional highlights include gas heat, central air conditioning, and underground utilities. An optional attached one-car garage is available for an additional fee. A rare opportunity to own a brand-new home at an affordable price point in Rocky Point—don’t miss it.
This information is not verified for authenticity or accuracy and is not guaranteed and may not reflect all real estate activity in the market. Listing courtesy of Coldwell Banker American Homes © 2026







