| ID # | RLS20067784 |
| פרטי בנין | 196 OWNERS CORP , 1 חדר שינה , 1 חדר אמבטיה , שטח פנימי 950 רגל מרובע , 88 מ”ר , 134 יחידות בבניין , בבניין יש 20 קומות 68 ימים (DOM) |
| שנת בנייה | 1959 |
| דמי תחזוקה | $2,364 |
| רכבת תחתית | 3 דקות לרכבת תחתית 6 |
| 4 דקות לרכבת תחתית Q | |
![]() |
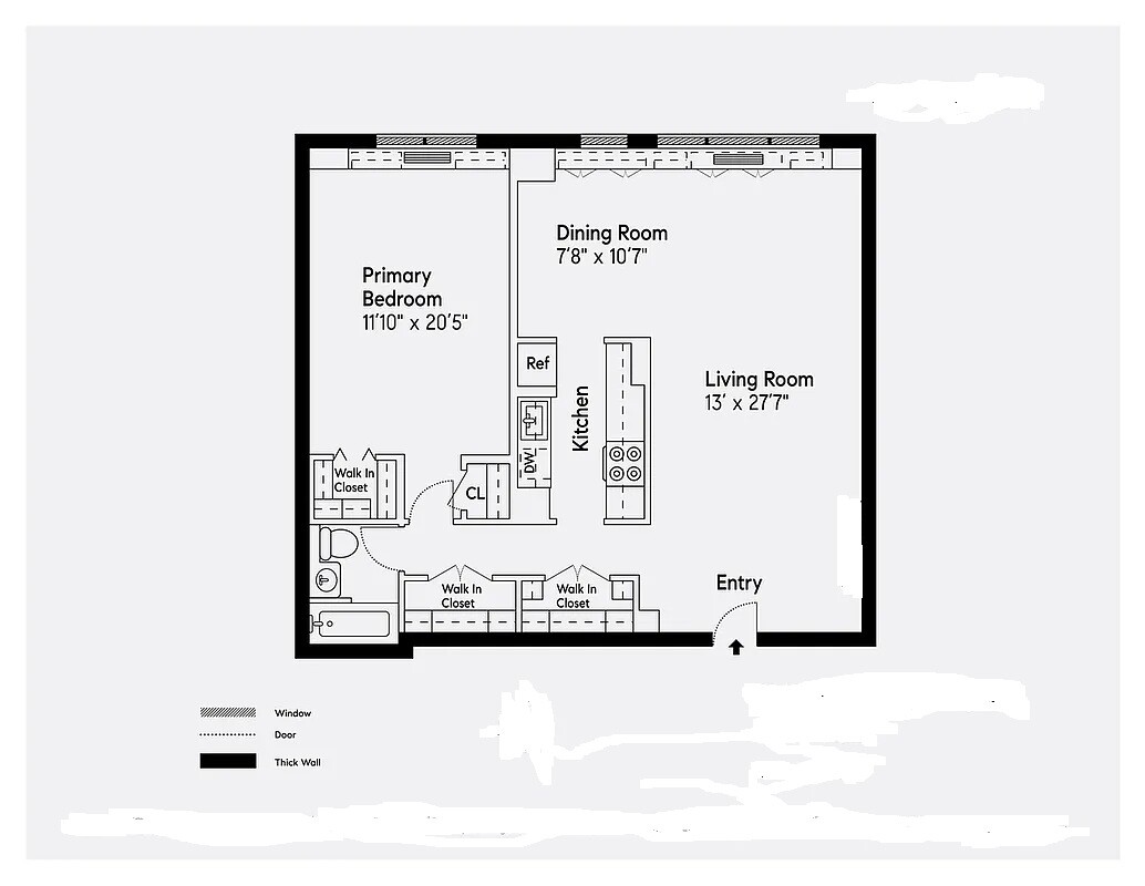
נמצא באחד החסדים המבוקשים ביותר באפר איסט סייד, 196 מזרח 75 רחוב הוא סמלה של שכונת אפר איסט סייד. עם הגעתכם ל-12E, תתפגשו עם סלון/אזור אוכל מפואר המופרד על ידי חשיפה מזרחית פתוחה עם אור טבעי מצוין מעל השדרה. אזור האוכל יכול בקלות להמיר לחדר שינה או משרד ביתי. דירה מרווחת זו עם חדר שינה אחד ניתנת להמרה ומגלמת יוקרה ברמה גבוהה עם עיצוב מדויק, פרופורציות וסקלה יוצאת דופן, המוגדרות בפרטים מעולים בכל חדר. המטבח ברמת שף מתחרה בכל חווית קולינריה בשוק, מצויד בתנור וונט של וולף, מדיח כלים בוש, ומתקן מים חמים מיידי. משטחי הקווארץ Viatera באיכות גבוהה וריצוף מוזאיקה פורצלן מציעים גם סגנון וגם פונקציה. חדר השינה הראשי המוגדל כולל כספות מותאמות אישית לאחסון מרווח. חדר האמבטיה מעוצב באופן אלגנטי בלוח פורצלן באיכות בהשראת ספא. רצפות אלון לבן של Preverco, מסכים סולאריים מרוחקים, חיווט חשמלי סמויות בכל מקום, ו-15 רגלים של ארונות הליכה יוצרים את הגימור המושלם בבית הזה. אחד הבניינים הבלעדיים ביותר במערב 3rd, שירותים של 196 מזרח 75 רחוב כוללים מרכז כושר, אחסון אופניים, כביסה מרכזית, מנהל מגורי חי וחניה באתר. מכונות כביסה/מייבש מותרים. יש מס רכישה של 2 אחוז. בעלי חיים מתקבלים בברכה. הצגות פרטיות רק לפי תיאום מראש.
Situated on one of the most desirable blocks on the Upper East Side,196 E 75th Street, is an Upper East Side icon. Upon arrival to 12E, one is greeted by a grand living room/dining area that is set apart by an open Eastern exposure with superb natural light over the Avenue. The dining area can easily be converted to a bedroom or home office. This spacious one bedroom convertible residence embodies high-end luxury with flawless design, of exceptional proportion and scale, defined by exquisite detail in every room. The chef-level kitchen rivals any culinary experience on the market, outfitted with a Wolf stove and vent, Bosch dishwasher, and an instant hot water dispenser. The high-quality Viatera quartz countertops, and porcelain mosaic tile backsplash offer both style and function. The oversized primary bedroom features custom closets for ample storage. The bathroom is elegantly designed with Porcelain tile spa-inspired quality. Preverco White Oak floors, remote solar shades, concealed electric wiring throughout, and 15 feet of walk-in closets create the perfect finish in this home. One of the most exclusive buildings West of 3rd, 196 E 75th St amenities include a fitness center, bike storage, central laundry, live-in Resident Manager and on-site parking. Washer/dryers are permitted. There is a 2 percent flip tax. Pets are welcome. Private showings by appointment only.
This information is not verified for authenticity or accuracy and is not guaranteed and may not reflect all real estate activity in the market. © 2026 The Real Estate Board of New York, Inc., All rights reserved.







