| ID # | 936959 |
| פרטי בנין | 2 חדר שינה , 1 חדר אמבטיה , מכונת מדיח כלים , מכונת כביסה , מזגן , שטח פנימי 950 רגל מרובע , 88 מ”ר 1 ימים (DOM) |
| שנת בנייה | 1952 |
| דמי תחזוקה | $1,367 |
| סוג דלק | גז טבעי Gas |
| מזגן | מזגן קיר Wall Unit AC |
![]() |
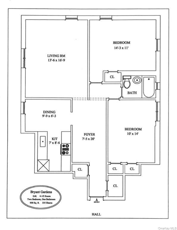
ברוך הבא ל-15 בריינט קרסנט, יחידה 1K—דירת 2 חדרי שינה / חדר רחצה עם הרבה אור בשכונת בריינט קרסנט המבוקשת בווייט פליינס. הבית המואר, המעודכן והמצוייר לאחרונה ממתין לבעליו החדשים! הכניסו דרכה אולמות קבלה נעימים עם חיפוי קיר מעוצב לתוך שטח פתוח שמחוזק בעיטור גבס ושטיחים בכל הבית. המטבח המשודרג המיועד לאכילה כולל משטחי גרניט, חיפוי טפטי שיש, מכשירים ממתכת בלתי מחלידה ודלפק ארוחת בוקר. סלון מרווח ומואר זורם בצורה מושלמת מהמטבח, מושלם להרפיה ולבידור.
שני חדרי שינה מרווחים מציעים אחד מהעיצובים המבוקשים ביותר במתחם. חדר הרחצה המעודכן מוסיף סגנון מודרני ונוחות, בנוסף לכך השכונה יוצאת הדופן הזו מציעה שטחים מטופחים כמו פארק. במפלס המרתף ישנן מתקני כביסה ופינוי פסולת המוחזקים היטב. קרוב למסעדות, חנויות ובידור הפורחות של שדרות מאמרונק. נוחות אמיתית של ווייט פליינס באווירה שקטה.
Welcome to 15 Bryant Crescent, Unit 1K—a sun-filled 2BR/1BA in White Plains' desirable Bryant Crescent community. This bright, updated, and newly painted home is ready for its new owners! Enter through a welcoming foyer with elegant wainscoting into an open-concept layout enhanced by crown molding and carpeting throughout. The renovated eat-in kitchen features granite counters, marble tile backsplash, stainless steel appliances, and a breakfast bar. The expansive, light-filled living room flows seamlessly from the kitchen, ideal for both relaxing and entertaining.
Two generous bedrooms offer one of the complex's most sought-after layouts. The updated bathroom adds modern style and convenience, plus this exceptional community offers beautifully landscaped, park-like grounds. Basement level brings well-maintained laundry and trash facilities. Near to Mamaroneck Avenue's thriving restaurants, shops, and entertainment. A true White Plains convenience in a peaceful setting. © 2025 OneKey™ MLS, LLC







