| MLS # | 948667 |
| פרטי בנין | 4 חדר שינה , 3 חדר אמבטיה , 1 חצי חדר אמבטיה , מכונת מדיח כלים , מכונת כביסה , מייבש כביסה , מזגן , שטח פנימי 1800 רגל מרובע , 167 מ”ר 63 ימים (DOM) |
| שנת בנייה | 2025 |
| סוג דלק | גז טבעי Gas |
| מזגן | מזגן ראשי Central Air |
| מרתף | מרתף שלם Full basement |
| תחנת רכבת | 1.7 מיילים לתחנת הרכבת "Port Washington" |
| 2.5 מיילים לתחנת הרכבת "Plandome" | |
![]() |
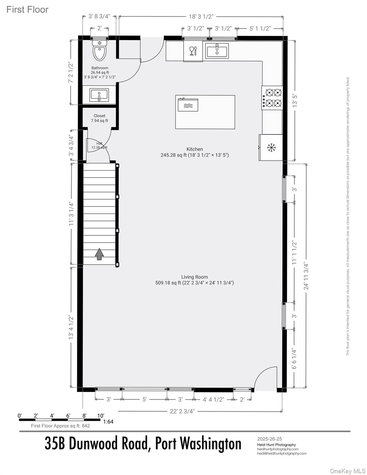
דופלקס חדש מעוצב בצורה יפהפייה, מיוחד עבור אורח החיים המודרני של היום עם נוחות, סגנון ופונקציונליות. היחידה כוללת 4 חדרי שינה ו-3.5 חדרי אמבטיה וכוללת תכנון פתוח עם סלון/אזור אוכל, ומטבח מודרני עם גישה לפטיו. בקומה העליונה תמצאו את הסוויטה הראשית עם אמבטיה, +3 חדרי אמבטיה נוספים וחדר אמבטיה מלא במעבר. מרתף מלא ומוגמר עם מכונת כביסה. חניה מחוץ לרחוב ל-2 מכוניות.
Beautifully crafted new construction duplex designed for today's modern living with comfort, style, and functionality. This 4-bedroom, 3.5-bath unit features an open floor plan with living room/dining area, and a modern kitchen with access to patio. Upstairs, you will find the primary suite with bath, +3 additional baths and full hall bath. Full, finished basement with laundry. Off-street parking for 2 cars.
This information is not verified for authenticity or accuracy and is not guaranteed and may not reflect all real estate activity in the market. Listing courtesy of Daniel Gale Sothebys Intl Rlty © 2026







