| ID # | RLS20063114 |
| פרטי בנין | Origin North Perry , 1 חדר שינה , 1 חדר אמבטיה , 27 יחידות בבניין , בבניין יש 6 קומות 50 ימים (DOM) |
| דמי תחזוקה | $1,049 |
![]() |
מכירת ספונסרים ללא אישור הדירקטוריון, ומימון גמיש זמין!
אוריג'ין نورח הוא אוסף של תשעה נכסי קואופ משופצים שחוגגים את מי שחוגגים את הברונקס ועלה מנהטן. צוות הפיתוח החדשני של קורקורן שמח להציג לכם את אוריג'ין نورח, שם הבעלות בעיר ניו יורק מתחדשת לחיים מודרניים.
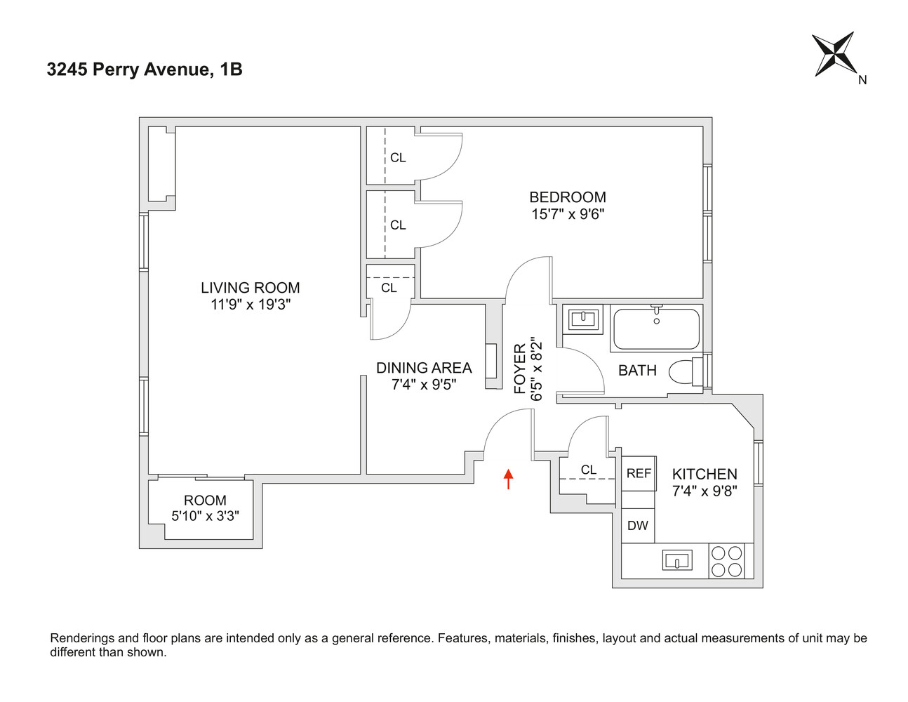
3245 פרי #1B הוא בית פינה מרווח המציע חדר שינה אחד / חדר אמבטיה אחד עם השדרוגים הגבוהים ביותר בכל ההיבטים. מהרגע שתכנסו, תתקבלו בברכה על ידי קשתות אלגנטיות ופירוטים לפני מלחמה שמציבים את הרקע בבית המפתח הזה. השדרוגים המפוארים של המגורים כוללים רצפת עץ מהונדסת בגוון אפור קנון של טרה לגנו, פנסי תאורה מקוונים מקסימים שיושבים בגובה, דלתות פנימיות עם שני פאנלים מ-Jeld-Wen עם חומרה מ-Yale ודפוסי בסיס בגובה 8 אינצ'ים.
חדר כניסה מזמין מוביל אתכם למטבח חדש לגמרי עם ארונות מעץ בעבודת יד בגימור מעושן, דלפקי קוורץ קלצ'טה וולנטין בלבן חם כולל כיור מתחתון מ-Elkay ואחורי קרמיקה בהירה בלבן. בנוסף, חבילת המכשירים מברזל נגד חלודה תוכננה על ידי Haier ו-GE וכוללת מדיח כלים ומיקרוגל.
חדר האמבטיה מצויד בצורה יפה בשירותים של Toto Entrada, מקלחת, חומרי מתכת של האונטינגטון ורצפות ואריחי קירות פורצלן של מיכלאנג'לו קלצ'טה.
כדי להשלים את התמונה, חדר השינה שלכם בגודל קינג כולל ארונות מצוינים, קירות מצופים, סלון שקוע ופירוטים מקוריים משוחזרים בסגנון דקו.
ברוכים הבאים לאוריג'ין פרי. נבנה בשנת 1940 וממוקם ברחוב בעל צמחייה, קווי גיאומטריה צנועים משתרעים על חזיתו היפה. מעל הכיסוי השחור שלו, פסל שיח הדקו קלאסי מציין את הכניסה המלכותית וההזמנתית הזו. הלובי של פרי הוא דקו ברונקסי במיטבו: טרצו ששוחזר למבריקו המקורי, עבודות מתכת מקוריות בדוגמאות אוריגמי עדינות, ותאורה יפה שמעוררת את הכל.
אוריג'ין פרי מוקף בשטחים ירוקים כולל האובאל המפורסם של וויליאמסברידג', הגן הבוטני של ניו יורק, ופארק ואן קורטלנדט. אבל אל תתנו למיקום האידילי להטעות אתכם; עם פחות משעה לנסוע לרחוב 42, נורווד מציע נוחות רצינית. רגעים מפרי נמצאות אזורי אוכל וקניות מרכזיים, רכבת D, רכבת 4, בית הספר סנט ברנדון, נהר הברונקס ודרכי מושולו, ובדיוק מעבר למדעי הברונקס, אוניברסיטת פורדהם ומרכז רפואי מונטיפיורי.
למדו על כל האוסף על ידי חיפוש אוריג'ין نورח.
נא לשים לב שיש הערכה בסך $1002.75 בחודש עבור חודש אוקטובר, נובמבר ודצמבר 2025.
זה לא הצעה. תנאי ההצעה המלאים נמצאים בתוכניות הצעה הזמינות מספונסרים חדשים. מספר תיק C-860377, ספונסר חדש: BRX PERRY APARTMENTS LLC. כתובת הספונסרים החדשים: 152 רחוב מערב 57, קומה 12, ניו יורק, NY 10019. הזדמנות דיור שווה.
SPONSOR SALE WITH NO BOARD APPROVAL, AND FLEXIBLE FINANCING AVAILABLE!
Origin North is a collection of nine restored co-op properties that celebrate those who celebrate the Bronx & Upper Manhattan. The Corcoran New Development team is delighted to introduce you to Origin North, where ownership in New York City is redefined for modern living.
3245 Perry #1B is a spaciously laid out corner 1 bedroom/1 bath home featuring the highest upgrades in all aspects. From the moment you enter, you will be greeted by graceful arches and pre-war details that set the stage in this turn key home. The residence premium upgrades include Terra Legno Cannon gray engineered wood flooring, flush mount Maxim Linear LED overhead lighting fixtures, interior two panel doors by Jeld-Wen with hardware by Yale and 8" base moldings.
An inviting entry foyer leads you to a brand new eat-in kitchen with custom stained wood cabinetry in smoke finish, Calacatta Valentin Quartz countertops in warm white plus undermount sink by Elkay and glazed ceramic backsplash in bright white tile. In addition, the stainless steel appliance package is designed by Haier and GE and includes a dishwasher and microwave.
The bathroom is beautifully equipped with Toto Entrada toilet, stall shower, Huntington Brass fixtures and Michelangelo Calacatta Porcelain wall and floor tile.
Rounding out the picture is your king size bedroom with great closets, skim-coated walls, sunken living room and restored original Deco details.
Welcome to Origin Perry. Built in 1940 and tucked away on a leafy block, understated geometric lines span its handsome facade. Above its black canopy, a classic deco relief sculpture mark this stately and inviting entrance. Perry's Lobby is Bronx Deco at its finest: terrazzo restored to its original luster, original metalwork in fine origami patterns, and beautiful lighting that makes it all sparkle. As one of nine properties in the new Origin North collection, the building and its spacious apartments blend historic details with a top-of-the line developer restoration.
Origin Perry is surrounded by greenspaces including the iconic Williamsbridge Oval, the New York Botanical Garden, and Van Cortlandt Park. But don't let its idyllic setting fool you; with under an hour to travel to 42nd St, Norwood is seriously convenient. Moments from Perry are key eating and shopping districts, the D train,the 4 train, St. Brandon School, the Bronx River and Mosholu Parkways, and just beyond Bronx Science, Fordham University and Montefiore Medical Center.
Learn about the entire collection by searching Origin North.
Please note there is an assessment in the amount of $1002.75 per month for the month of October, November and December 2025.
This is not an offering. THE COMPLETE OFFERING TERMS ARE IN OFFERING PLANS AVAILABLE FROM NEW SPONSORS. FILE NO. C-860377, NEW SPONSOR: BRX PERRY APARTMENTS LLC. New Sponsors" address: 152 West 57th Street, 12th Floor, New York, NY 10019. Equal Housing Opportunity.
This information is not verified for authenticity or accuracy and is not guaranteed and may not reflect all real estate activity in the market. ©2025 The Real Estate Board of New York, Inc., All rights reserved.







