| ID # | 940351 |
| שנת בנייה | 1985 |
| מיסים (בשנה) | $12,817 |
| סוג דלק | גז טבעי Gas |
| סוג חום | אוויר חם Hot air |
![]() |
בניין האודסון פאוור ממוקם על סף המסחר של העיר, בשטח של 7,544 רגלים רבועים של פלדת באטלר על פני 1.5 דונם לאורך שדרות פאוור, פחות מייל אחד מחנויות ואמסטרט סיטי של רחוב וורן, מסעדות ורכבת אמטרק לניו יורק סיטי. עם גישה נוחה לשני הכבישים 9G ו-23B, וקו ראשי במרכז העיר, הבניין המודרני הזה מציע סוג חלל מסחרי גמיש שהפך לנדיר יותר ויותר בהודסון, עם תוכניות קומה פתוחות, דוקי טעינה כפולים, מערכת חשמל תלת פאזית וחלל להתרחבות.
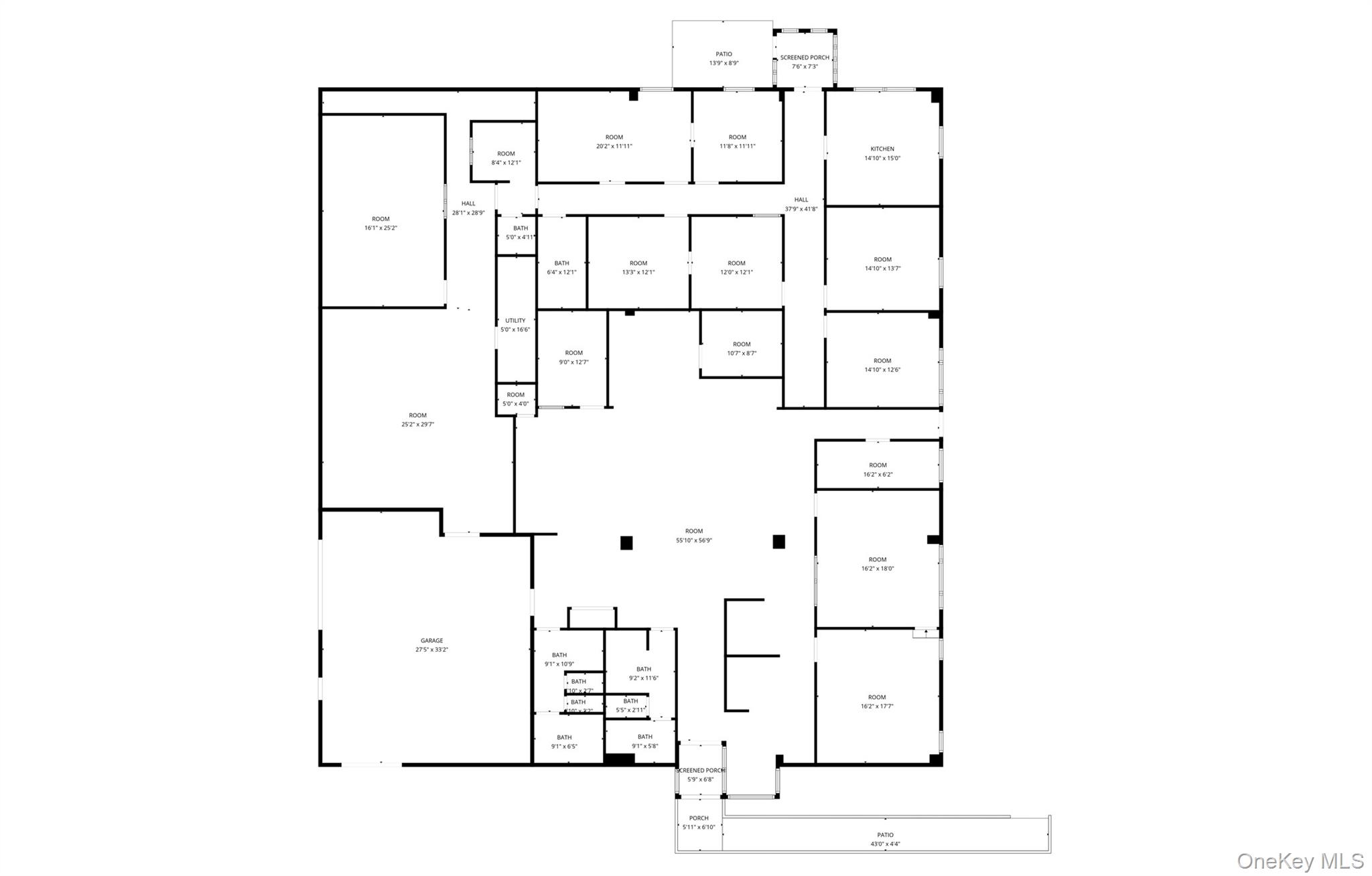
הבנייה מברזל והקירות הפנימיים שאינם נושאים תומכים בשינויים פשוטים. חדרים קטנים ממוקמים כיום בחלל, עם ארבעה חדרי שירות וחדרי אחסון שנועדו לגישה למסחר. הסקלה מתאימה לעסקים שזקוקים למה שדרושים כמה מהעסקים המוקדמים ביותר בהודסון, ויכולה לשרת מגוון שימושים; מחסן עתיקות, חלל לעבודת צוות, מרכז הפצה לפעולה אזורית, משרד למותג חדש, אספקת אינסטלציה עם חלל תצוגה, ייצור רהיטים עם נוכחות קמעונאית, מלון בוטיק או ספא, מתקני ייצור מזון עם חדר טעימות, או מוקד לעסק חדש או מתפתח ברחוב וורן. הפריסה תומכת בחלוקה לחללי שכירות מרובים או לפעולה חד-שימושית. מכוני שירות לרכב, ייצור בירה עם חדר טעימות, סטודיו יצירתי עם שירותים משותפים. החלל הגמיש מתאים לחזון שלך.
חניון סלול קולט 30 רכבים וכולל ארבעה תחנות טעינה ל- EV. החלקה של 1.5 דונם מספקת מקום לתצוגות חיצוניות, אחסון חומר או הרחבה. הנכס כולל מערכות אוורור מהעבר התעשייתי שלו, והזון I-1 (תעשייתי) שלו מתיר שימושים הן באזור מסחרי כללי והן באזור מסחרי מרכזי. בעל הנכס יחלק תוכניות אדריכליות מפורטות לחלוטין עם קונים רציניים. ממוקם שלושים דקות משדה התעופה הבינלאומי של אלבני ובתוך אזור הזדמנויות פדרלי, המציע תמריצי מס פוטנציאליים למשקיעים מתאימים. כמה תמונות הוצגו באופן וירטואלי.
Hudson Power Building sits at the city’s commercial threshold, 7,544-square-feet of Butler steel on 1.5 acres along Power Avenue, less than one mile from Warren Street’s shops, restaurants and Amtrak Train to New York City. With easy access to both Routes 9G and 23B, and a main line downtown, this contemporary building offers the kind of flexible commercial space that's become increasingly rare in Hudson, with open floor plans, dual loading docks, a 3-phase electrical system, and room to grow.
The steel construction and non-bearing interior walls support straightforward reconfiguration. Fifteen offices currently occupy the space, with four half bathrooms and warehouse areas designed for freight access. The scale works for businesses needing what some of Hudson's most established businesses require, and can serve a multitude of uses; an antique warehouse, coworking space, distribution center for a regional operation, emerging brand headquarters, plumbing supply with showroom space, furniture fabrication with retail presence, boutique hotel or spa, food production facility with tasting room, or an outpost for a new or growing Warren Street establishment. The layout supports subdivision into multiple tenant spaces or single-use operation. Automotive service bays, brewery production with taproom, creative studios with shared amenities. The flexible space adapts to your vision.
A paved parking lot accommodates 30 vehicles and includes four Chargepoint EV charging stations. The 1.5-acre parcel provides room for outdoor displays, material storage, or expansion. The property has existing ventilation systems from its manufacturing past, and its I-1 (Industrial) zoning permits uses in both General Commercial and Central Commercial districts. The owner will share fully detailed architectural plans with serious buyers. Located thirty minutes from Albany International Airport and within a Federal Opportunity Zone, offering potential tax incentives for qualified investors. Some images have been virtually staged. © 2025 OneKey™ MLS, LLC






